EasyManua.ls Logo

Siemens SIPROTEC 7SS523 V3.2 - A.4 Settings - Central Unit; A.4.1 Settings of the ZPS Modules

Siemens SIPROTEC 7SS523 V3.2
430 pages
To Next Page IconTo Next Page
To Next Page IconTo Next Page
To Previous Page IconTo Previous Page
To Previous Page IconTo Previous Page
Loading...
Appendix
340
7SS52 V4 Manual
C53000-G1176-C182-1
A.4 Settings Central Unit
A.4.1 Settings of the ZPS Modules
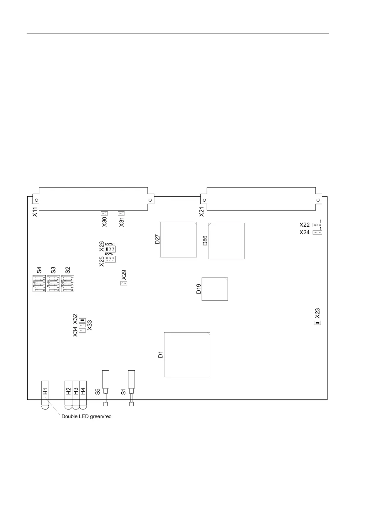
The ZPS modules are a component of the central unit. They can be used as master
(ZBS-SBK) or slave (ZPS-BSZ or ZPS-SK) in the multi-processor system. The
C53207-A361-B12-1 module can be applied universally as ZPS-SK, ZPS-SBK and
ZPS-BSZ. The C53207-A361-B112-1 module has no communication controller and
can thus only be used as ZPS-SBK and ZPS-BSZ module. For an unequivocal defini-
tion of the task, the respective module is coded by means of switches.
The location of the code switches and the jumpers on the module is depicted in figure
Figure A-9, page 344. The settings can be taken from the tables A-8, page 341 and
A-9, page 341.
Figure A-7 Location of the coding switches and jumpers on the ZPS module
It is recommended to verify the switch positions and jumpers before fitting the module.
In Table A-8, page 341 and Table A-9, page 341 of the appendix the settings are list-
ed.

Table of Contents

Related product manuals