EasyManua.ls Logo

Sony SA-SD35 - Schematic Diagram - MAIN Board (9;9)

Sony SA-SD35
80 pages
Print Icon
To Next Page IconTo Next Page
To Next Page IconTo Next Page
To Previous Page IconTo Previous Page
To Previous Page IconTo Previous Page
Loading...
HT-S350/SD35
HT-S350/SD35
35
Sony CONFIDENTIAL
For Authorized Servicer
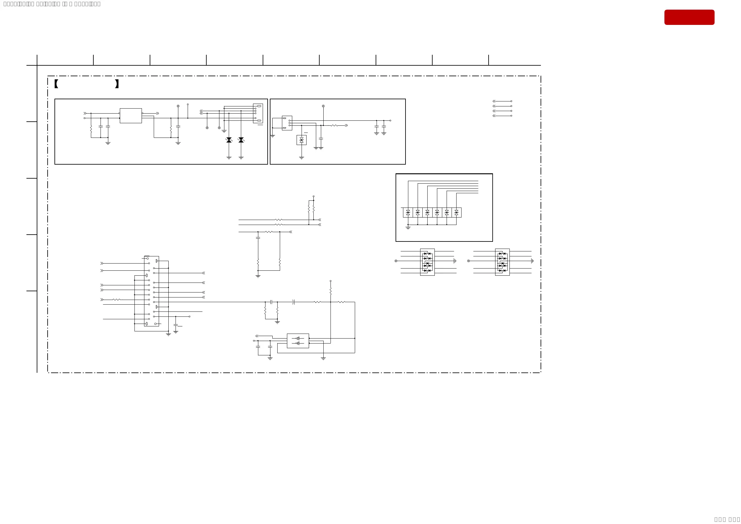
4-10. SCHEMATIC DIAGRAM - MAIN Board (8/9) -
A
E
D
B
C
12345678
(8/9)MAIN BOARD
9
TP20
D7
RCLAMP0551P-TST-1-GP-U
R168 22R2J-2-GP
R170 22R2J-2-GP
C167
SC10U6D3V2MX-GP-U
C161
SCD1U10V2KX-5GP
R169
680R2F-GP
R172
68R2-GP
D13
AOZ8808DI-05-1-GP
D8
RCLAMP0551P-TST-1-GP-U
C158
SC22U16V0KX-2-GP
C164
SC1U10V2KX-1GP
R166
0R2J-2-GP
C168
SCD1U50V2KX-1-GP
C163
DUMMY-R2-GP
TP185
TPAD40-GP
R171
47KR2J-2-GP
TP186
TPAD40-GP
TC3
ST47U10VBM-2-GP
R165
220KR2F-GP
R167
430R2J-GP
D19
RCLAMP0551P-TST-1-GP-U
C166
SCD1U50V2KX-1-GP
R162
10KR2J-3-GP
D9
RCLAMP0551P-TST-1-GP-U
D14
RCLAMP0551P-TST-1-GP-U
SKT1
SKT-USB6-208-GP
U14
SN74AUP2G14DCKR-GP
TP187
TPAD40-GP
D10
RCLAMP0551P-TST-1-GP-U
D12
AOZ8808DI-05-1-GP
TP21
TP184
TPAD40-GP
D11
RCLAMP0551P-TST-1-GP-U
R173
1KR2J-1-GP
C160
SC22U16V0KX-2-GP
C162
DUMMY-R2-GP
R161
100R2J-2-GP
R175
47KR2J-2-GP
R174
68R2-GP
SKT2
SKT-OPTIC-42-GP
C159
SCD1U50V3KX-GP
R164
1K8R2-GP
R163
1K8R2-GP
R160
10KR2J-3-GP
D5
DUMMY-R2-GP
D6
DUMMY-R2-GP
SKT3
SKT-HDMI25-26-GP
U13
TPS2065CDBVR-GP
C165
SC1U10V2KX-1GP
AOZ3 AOZ4
HDMI_HPD_1
ARC_1
SDA
SCL
HDMI_CEC
+5V_HDMI
USB_DP
USB_DM
SPDIF#
TXC- TXC-
TXC+TXC+
TX2- TX2-
TX2+ TX2+
TX2+
TX2-
TX1+
TX1-
TX0+
TX0-
TXC+
TXC-
SCL
SDA
ARC_1
HDMI_HPD_1
HDMI_CEC
ARC_2 ARC_3
ARC_4
ARC_C
SCL
SDA
HDMI_HPD_1
HDMI_HPD_2
TX0- TX0-
TX0+ TX0+
TX1-TX1-
TX1+ TX1+
+5V_USB_O
PCONT_M_SYS
4,5,6
USB_OCPI
6
SPDIF_OPT
6
MT8307_USB_DP
6
MT8307_USB_DM
6
TX2+
6
TX2-
6
TX1+
6
TX1-
6
TX0+
6
TX0-
6
TXC+
6
TXC-
6
CEC
6
ARC_SPDIF
6
HDMI_SCL
6
HDMI_SDA
6
HDMI_HPD
6
+5V_STB
4,5,10
+3V3
5
+5V_HDMI
5
+3V3_STB
4,5,6,8,10,12
+5V_STB
+3V3
+5V_HDMI
+3V3_STB
+3V3_STB
+5V_HDMI
+5V_STB
+3V3
+5V_USB_O
+5V_HDMI
+3V3_STB
1
12
12
12
12
12
12
12
1
2
4
56
7
9
10
38
12
12
12
12
12
12
1
12
1
12
12
12
12
12
12
12
12
1
2
3
4
5
6
1
2
34
5
6
1
12
1
2
4
56
7
9
10
381
1
12
12
12
12
12
12
12
1
2
3
PTH1
PTH2
12
12
12
12
12
12
1
2
3
4
5
6
7
8
9
10
11
12
13
14
15
16
17
18
19
20
21
22
23
NP1
NP2
1
2
34
5
12
HDMI_TX
SPDIFUSB
Close to SKT3 for EMI
DNPDNP DNP
1A
GND
2A2Y
VCC
1Y
OUT
GND
FLT#EN/EN#
IN
SYSSET
2019/02/1301:27:25(GMT+09:00)

Table of Contents

Related product manuals