EasyManua.ls Logo

Sony STR-DA5000ES - 7 Exploded Views; Case Section

Sony STR-DA5000ES
170 pages
Print Icon
To Next Page IconTo Next Page
To Next Page IconTo Next Page
To Previous Page IconTo Previous Page
To Previous Page IconTo Previous Page
Loading...
109
STR-DA5000ES
SECTION 7
EXPLODED VIEWS
Items marked “*” are not stocked since they
are seldom required for routine service. Some
delay should be anticipated when ordering
these items.
The mechanical parts with no reference num-
ber in the exploded views are not supplied.
Accessories are given in the last of the elec-
trical parts list.
Color variation
SILVER : US, Canadian model
GOLD : AEP, Chinese, Taiwan model
BLACK : AEP model
NOTE:
-XX and -X mean standardized parts, so they
may have some difference from the original
one.
Color Indication of Appearance Parts
Example:
KNOB, BALANCE (WHITE) . . . (RED)
↑↑
Parts Color Cabinet's Color
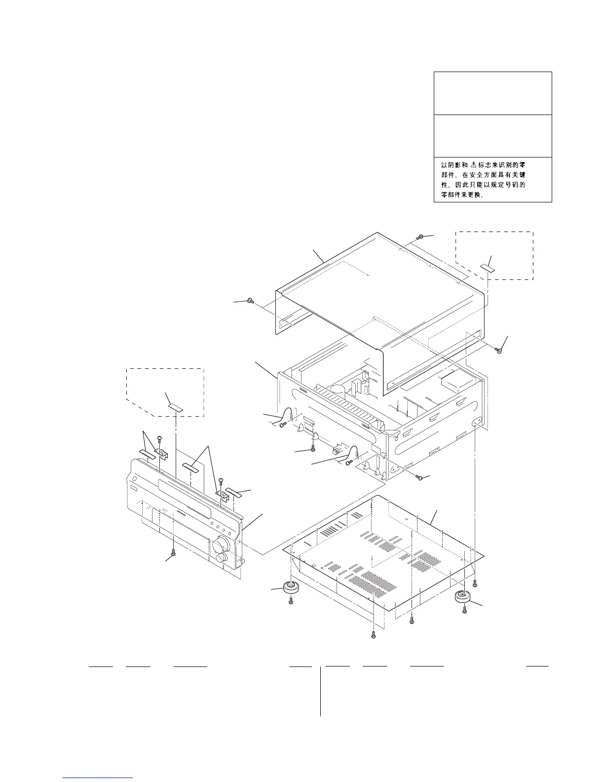
7-1. CASE SECTION
Ref. No. Part No. Description Remark
Ref. No. Part No. Description Remark
1 4-222-052-91 CASE (BLACK)
1 4-247-044-11 CASE (SILVER)
1 4-247-044-31 CASE (GOLD)
2 4-227-843-01 SCREW (TP), FLAT HEAD (for BLACK)
2 4-227-843-31 SCREW (TP), FLAT HEAD (for GOLD, SILVER)
3 3-704-515-21 SCREW (BV/RING)
4 X-4949-759-2 FOOT ASSY
#1 7-685-646-79 SCREW +BVTP 3X8 TYPE2 IT-3
#2 7-685-885-09 SCREW +BVTT 4X16 (S)
1
2
2
2
3
3
4
4
not supplied
not supplied
not supplied
not supplied
not supplied
not supplied
front panel section-1
chassis section-1
3
#1
#1
#1
#1
#1
#1
#1
#2
#2
not supplied
(EXCEPT US, CND)
not supplied
(EXCEPT US, CND)
Les composants identifiés par une
marque 0 sont critiquens pour la
sécurité.
Ne les remplacer que par une pièce
portant le numéro spécifié.
The components identified by
mark 0 or dotted line with mark
0 are critical for safety.
Replace only with part number
specified.
•Abbreviation
CH : Chinese model
CND : Canadian model
TW : Taiwan model

Table of Contents

Other manuals for Sony STR-DA5000ES

Related product manuals