EasyManua.ls Logo

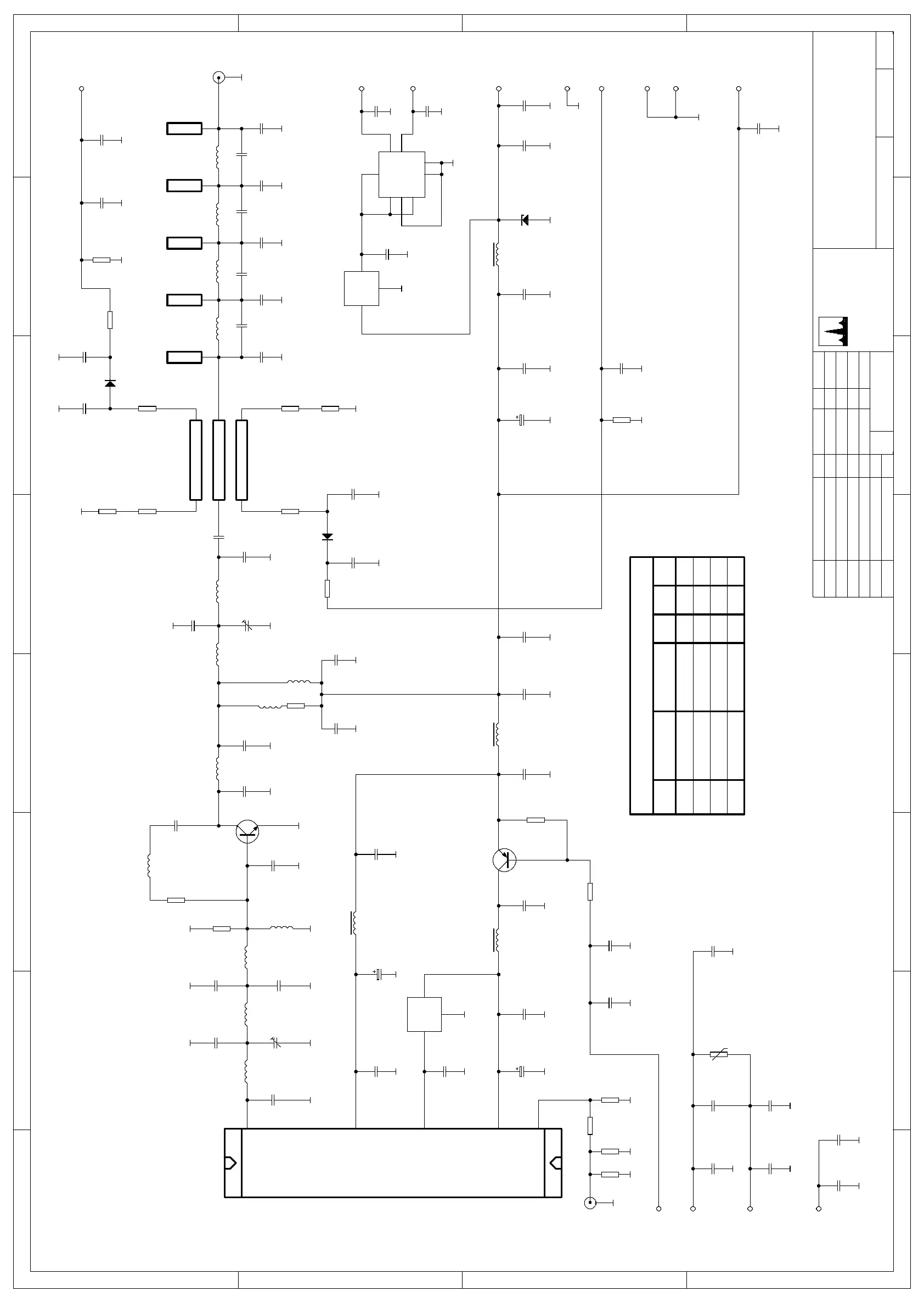
Spectra Engineering MX800 - Circuit Diagram: MX800 PA CIRCUIT DIAGRAM; PA Circuit Diagram Details (continued)

Spectra Engineering MX800
201 pages
Print Icon
To Next Page IconTo Next Page
To Next Page IconTo Next Page
To Previous Page IconTo Previous Page
To Previous Page IconTo Previous Page
Loading...
1 2 3 4 5 6 7 8
A
B
C
D
8
7654321
D
C
B
A
9 TRADE ROAD
MALAGA 6062
WESTERN AUSTRALIA
PHONE (618) 92482755
FAX (618) 92482756
L21
0.5T
ETH
C67
680p
L20
0.5T
ETH
C59
220p
L23
18n5H
L12
43nH
L13
2T
ETH ETH
C33
100n
C34
1n
SK2-3
ETH
R1
180R
C16
100n
R25
10R
ETH
CN4-9
ETH
C7
ETH
CN1
C14
1n
CN4-6
ETH
CN4-2
ETH
C15
1n
R5
1K8
R4
10K
ETH
C9
3u3/16V
ETH ETH
CT1
5-60p
C57
220p
ETH
C58
1n
ETH
ETH
ETH
C41
1n
ETH
C17
1n
CN4-5
ETH
R9
22R
R8
56R
D2
HSMS-2800
C19
1n
ETH
ETH
C18
1n
D1
HSMS-2800
C4
560p
C60
27p
L10
43nH
R6
2R2
C5
330p
L8
TR1
SD1446
CT2
5-60p
CN3
ETH
R10
56R
R11
22R
ETH
ETH
ETH
ETH
ETH
C21
1n
C22
470n
ETH ETH
L9
RFC
L6
RFC
L5
RFC
CN2-2
C32
1n
ETH
L7
RFC
C30
100n
ETH
C26
1n
ETH
C29
470u
ETH
C24
1n
ETH
C1
100n
ETH ETH
C11
1n
ETH
TR2
FMMT591
TS1
KTY10-5
C40
1n
ETH
C3
3u3/16V
CN4-4
C39
1n
ETH
C38
1n
ETH
R7
N.F.
C8
100n
ETH
ETH
ETH
CN4-10
CN4-7
C35
100n
VCC
8
TST
7
CLK
6
DATA
5
A0
1
A1
2
A2
3
VEE
4
IC4
* X24C04
* IC3
78L05
ETH
CN4-8
D3
BZW03C18
ETH
CN4-1
R19
1K
R16
1K
R17
10K
R18
10K
ETH
R12
220R
R2
68R
R3
100R
ETHETH
C44
N.F.
ETH ETH
C52
22p
C45
27p
ETHETHETH
L1
C50
39p
L2
C48
39p
L3
C46
39p
L4
C51
8p2
C49
15p
C47
12p
C28
18p
ETH
R14
330R
C27
18p
ETH
R13
330R
C31
100n
ETH
L11
17n5H
C37
1n
ETH
C12
1n
ETH
C13
1n
ETH
C6
100n
ETH
IC2
78L05
ETH
C10
1n
ETH
CN4-3
C36
1n
ETH
C23
1n
ETH
C20
1n
ETH
C42
1n
ETH
C43
1n
ETH
CN2-1
ETH
C53
15p
ETH
L14
43nH
C54
56p
ETH
G,N,O,P,J3. CONNECT PADS
47p
33p
BANDS A-B 66-88MHz
MX800 50 WATT POWER
1 OF 1
20-7-97
10-2-97
ACS016-1A
AMPLIFIER MODULE
DATE REVISION TITLE
DRAWING No SHEET REV
REF
DWGS
BY DATE
DESIGNED
DRAWN
CHECKED
APPROVED
APP
GJ
GJ
SPECTRA
ENGINEERING
(C) Copyright
N.F.
M67743L
M67743H
RF POWER HYBRID
IC1 RF OUTPUT
REFL VOLTS
FWD VOLTS
+12V IN
TEMP SENSOR
PTT IN
(IN HEATSINK)
2K
RF
+VE
+VE
+VE
RF IN
RF IN
S5
S6
S7
DATA
CLOCK
S12S11S10S9S8
PA COMPONENT VALUES
FREQ RANGEBAND
74-88MHz
66-80MHzA
B
IC1
NOTE:
1. NOT ALL COMPONENTS FITTED
2. * DEPENDS ON APPLICATION
C53 C7 C5
OUT

Table of Contents

Related product manuals