EasyManua.ls Logo

Sullivan-Palatek 40D - Dimensions-Open, Platform Mount, Air-Cooled

Default Icon
114 pages
Print Icon
To Next Page IconTo Next Page
To Next Page IconTo Next Page
To Previous Page IconTo Previous Page
To Previous Page IconTo Previous Page
Loading...
16 SPECIFICATIONS
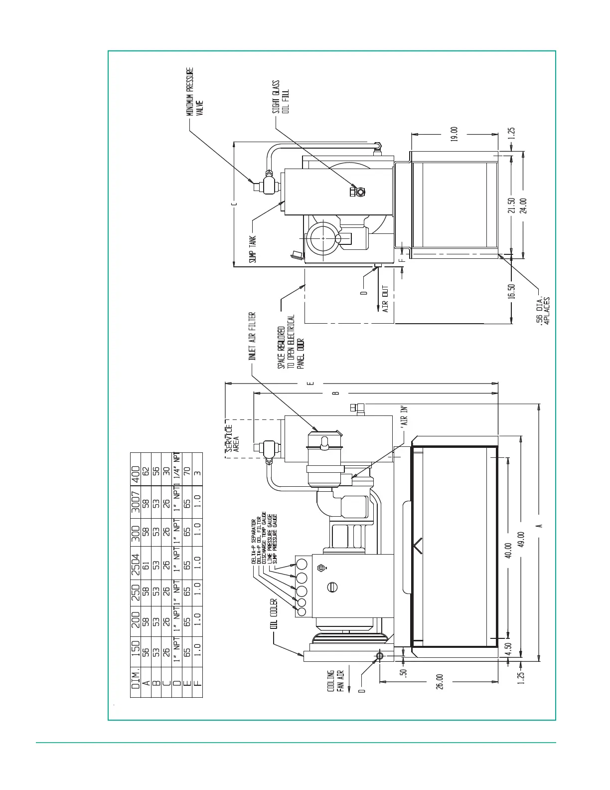
2.6 DIMENSIONSOPEN, PLATFORM MOUNT, AIR-COOLED
 

Table of Contents

Related product manuals