EasyManua.ls Logo

TEC TECDrive20-EU Series - Appendix C Optional Peripheral Accessories; Wiring of Peripheral Accessories

TEC TECDrive20-EU Series
171 pages
Print Icon
To Next Page IconTo Next Page
To Next Page IconTo Next Page
To Previous Page IconTo Previous Page
To Previous Page IconTo Previous Page
Loading...
TECDrive20-EU Series Inverter Optional peripheral accessories
-150-
Appendix C Optional peripheral accessories
This chapter describes how to select the options and parts of TDI20-EU series.
C.1 Wiring of peripheral accessories
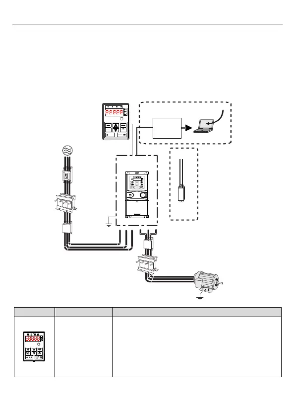
The following figure shows the external wiring of the inverter.
+
PB
Adapter
(cable)
485+
485-
LED external keypad
Optional
Power supply
Breaker
Input reactor
Input filter
Earth
PC
Upper PC software
Braking
resistor
Output filter
Output reactor
Motor
Earth
1
2
4
3
5
PRG
ESC
DATA
ENT
QUICK
JOG
SHIFT
RUN
STOP
RST
RUN/TUNE FWD/REV LOCAL/REMOT TRIP
Hz
A
V
RPM
%
Pictures
Name
Descriptions
External keypad
External keypads include the external keypads with and
without the function of parameter copying.
When the external keypad with parameter copying is valid,
the local keypad is off; when the external keypad without
parameter copying is valid, the local and external keypads
are on simultaneously.

Table of Contents

Related product manuals