EasyManua.ls Logo

Telefire TSA-200XT - Aerosol Extinguishing - Greenex Aerosol Generators; Figure 14 Connecting a Firepro Aerosol Generator; Figure 15 Connecting a Greenex Aerosol Generator

Default Icon
79 pages
Print Icon
To Next Page IconTo Next Page
To Next Page IconTo Next Page
To Previous Page IconTo Previous Page
To Previous Page IconTo Previous Page
Loading...
TSA-200 / TSA-200XT / TSA-240 / TSA-240XT
© 2010 – 2014 Telefire Fire & Gas Detectors Ltd Revision 1.06 July 2014
Page 39 of 79
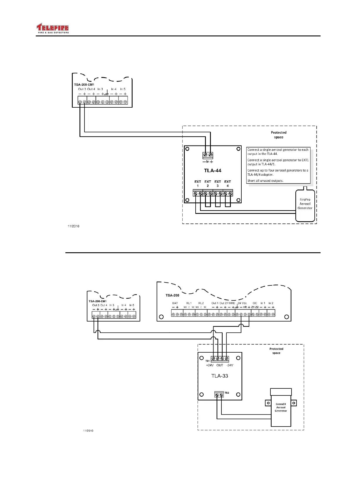
Activation is simultaneous to all aerosol devices connected to the TLA-44. The module's
output lines to the aerosol devices are supervised for open circuit.
Figure 14 Connecting a FirePro Aerosol Generator
11.9 Aerosol Extinguishing – GreenEX Aerosol Generators
The TSA-200XT /TSA-240XT can activate a GreenEX aerosol generator via a TLA-33
extinguishing adapter.
Figure 15 Connecting a GreenEX aerosol generator

Table of Contents

Related product manuals