EasyManua.ls Logo

VAF instruments OILCON MARK 6M - Page 150

VAF instruments OILCON MARK 6M
175 pages
Print Icon
To Next Page IconTo Next Page
To Next Page IconTo Next Page
To Previous Page IconTo Previous Page
To Previous Page IconTo Previous Page
Loading...
149
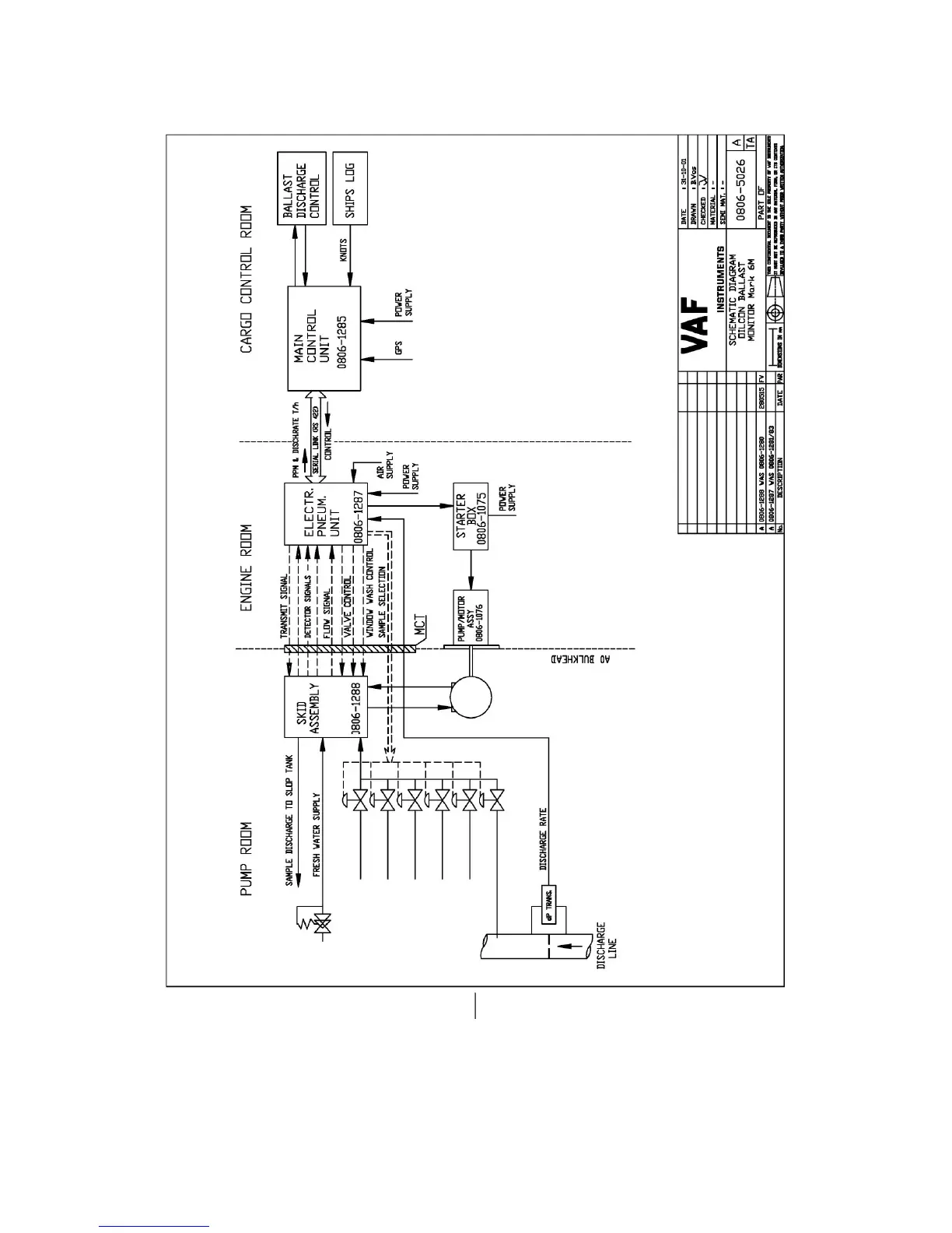
Drawing 23 – 0806-5026

Table of Contents