EasyManua.ls Logo

Volvo EC210B - Instrument Panel Layout and Gauges

Volvo EC210B
244 pages
Print Icon
To Next Page IconTo Next Page
To Next Page IconTo Next Page
To Previous Page IconTo Previous Page
To Previous Page IconTo Previous Page
Loading...
Instruments
and controls
46
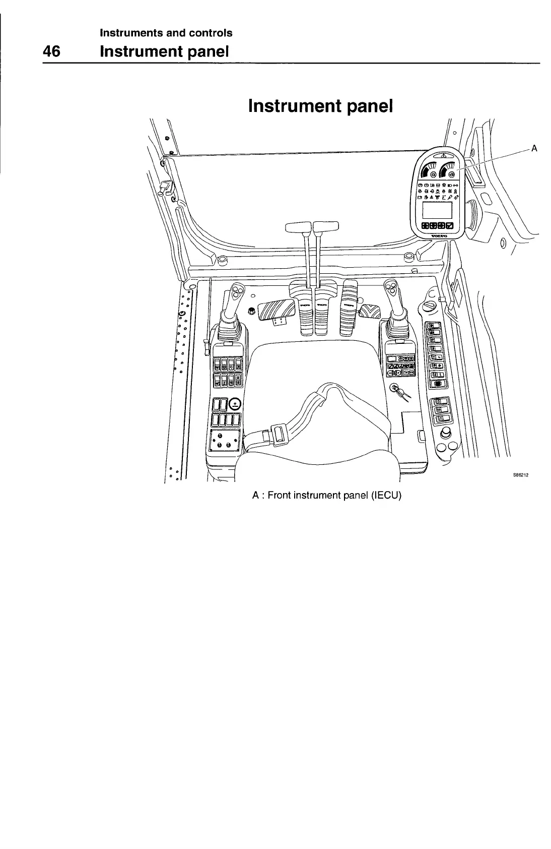
Instrument panel
Instrument panel
A: Front instrument panel (IECU)

Table of Contents

Related product manuals