EasyManua.ls Logo

Wolf CT - Cooktop Island Hood Installation

Wolf CT
98 pages
Print Icon
To Next Page IconTo Next Page
To Next Page IconTo Next Page
To Previous Page IconTo Previous Page
To Previous Page IconTo Previous Page
Loading...
2-10
Installation InformationCT Hoods and DD Ventilation
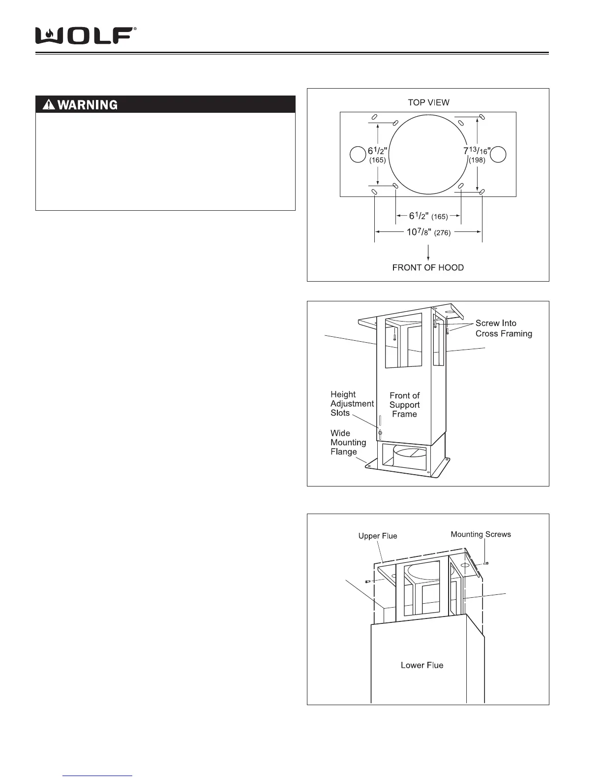
Figure 2-16 Telescopic Flue Mounting
COOKTOP ISLAND HOOD INSTALLATION
INSTALL SUPPORT SYSTEM
At the island hood installation location, install two-1.
by-four or 3/4”(19) plywood cross framing between
ceiling joists. Refer to the island hood mounting pattern
dimensions. (See Figure 2-16)
Finish the ceiling surface. Be sure to mark the location 2.
of the ceiling joists and cross framing.
Determine the desired orientation of the island hood. 3.
Note that the front designates the control side of the
hood.
Secure the upper half of the support frame to the joists 4.
and cross framing with four screws provided with your
hood. Make sure that the screws are driven into the
center of the joists and framing for maximum strength.
(See Figure 2-17)
Adjust the overall height of the support frame. Loosen 5.
and retighten the screws in the height adjustment slots
as necessary. (See Figure 2-17)
NOTE: The hood height is 11 1/4”(286) from the support
frame attachment point. The bottom of the hood must
be 24” (610)minimum and 30” (762) maximum from the
countertop.
Secure the upper telescopic chimney ue section to the 6.
upper support frame. (See Figure 2-18)
Figure 2-18 Upper Chimney Flue Mounting
DUE TO THE WEIGHT OF SOME HOODS, SEVERAL
PEOPLE MAN BE REQUIRED FOR A SAFE AND
PROPER INSTALLATION.
FRAMING MUST BE STRUCTURALLY TIED TOGETHER
AND TIED TO CEILING JOISTS TO PROVIDE ENOUGH
STRENGTH TO SUPPORT WEIGHT OF THE HOOD
AND INTERNAL BLOWER, IF APPLICABLE.
Figure 2-17 Support Frame

Related product manuals