EasyManua.ls Logo

YASKAWA A1000 - Control Circuit Terminal Functions

YASKAWA A1000
70 pages
Print Icon
To Next Page IconTo Next Page
To Next Page IconTo Next Page
To Previous Page IconTo Previous Page
To Previous Page IconTo Previous Page
Loading...
2.1 Mechanical Installation
YASKAWA ELECTRIC TOEP C710616 50B YASKAWA AC Drive - A1000 6-Phase/12-Pulse Input Installation Guide 17
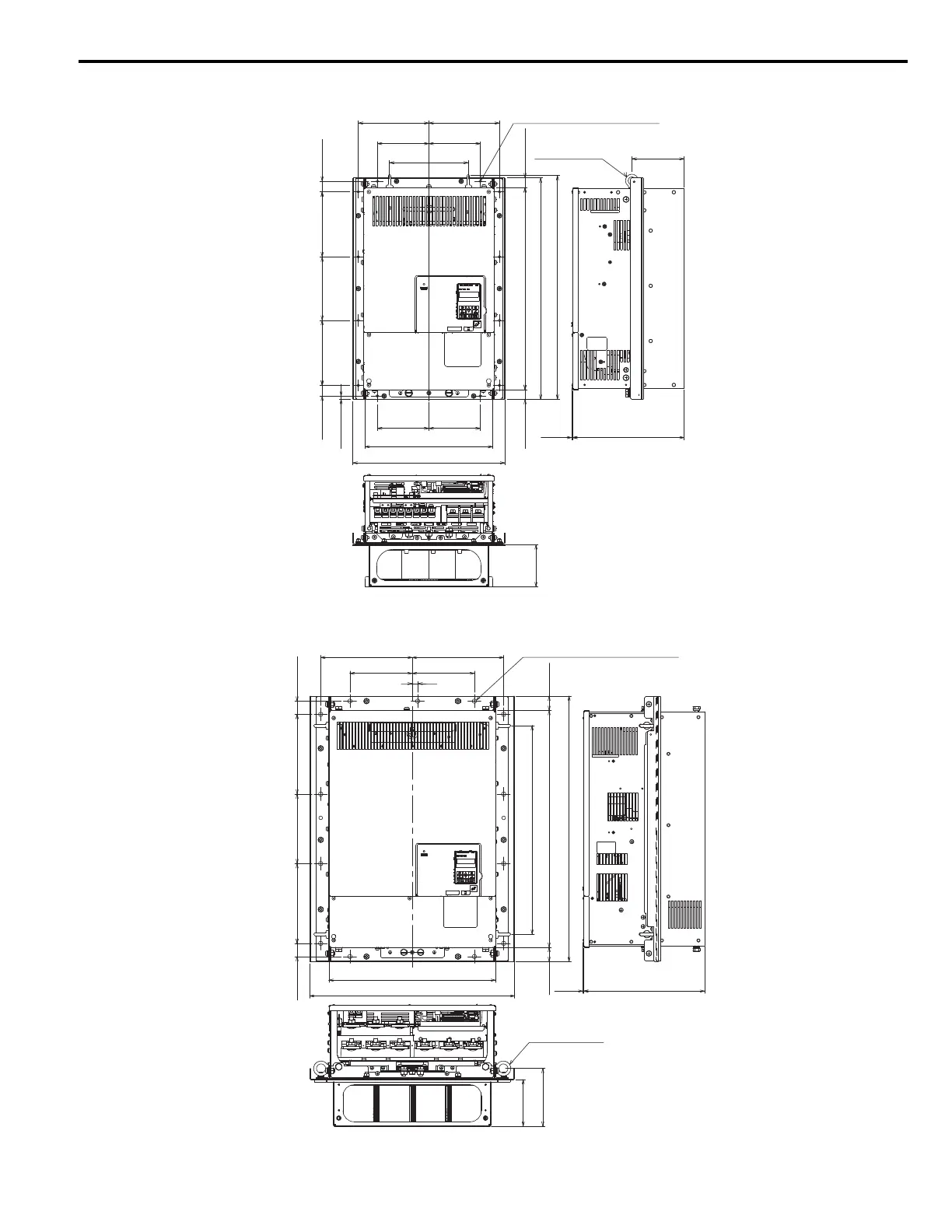
CIMR-A4T0139U, 0165U
Figure 2.5
Figure 2.5 Dimensions (CIMR-A4T0139U, 0165U)
CIMR-A4T0208U
Figure 2.6
Figure 2.6 Dimensions (CIMR-A4T0208U)
unit: mm (inch)
Eye Bolts
with M8 Screw
12-Mounting Holes for M6 Screw
283 (11.14)
3
(0.12)
199.8 (7.87)
132.6 (5.22)
324 (12.76)
386 (15.20)
130.5 (5.14)
130.5 (5.14)
179.1 (7.06) 179.1 (7.06)
165 (6.50) 161 (6.34) 165 (6.50) 27 (1.06)
24.5 (0.96)
512.7 (20.19)
24.9 (0.98)
562 (22.13)
568 (22.36)
106.9
(4.21)
130.5
(5.14)
130.5
(5.14)
27 (1.06)
8.5 (0.33)
unit: mm (inch)
Eye Bolts
with M10 Screw
13-Mounting Holes for M10 Screw
330 (12.99)
3
(0.12)
157.5 (6.20)
127 (5.00)
36 (1.42)
218 (8.58) 190 (7.48) 218 (8.58)
36 (1.42)
455.2 (17.92)
560 (22.05)
170 (6.69) 170 (6.69)
15 (0.59)
250 (9.84) 250 (9.84)
39.1
(1.54)
38.7
(1.52)
647.2 (25.48)
725 (28.54)
570 (22.44)

Table of Contents

Other manuals for YASKAWA A1000

Related product manuals