EasyManua.ls Logo

YASKAWA iQpump Micro CIMR-PW Series

YASKAWA iQpump Micro CIMR-PW Series
444 pages
To Next Page IconTo Next Page
To Next Page IconTo Next Page
To Previous Page IconTo Previous Page
To Previous Page IconTo Previous Page
Loading...
No. Parameter Name Setting Values
P9-27 Network Recovery
Default: 0
Range: 0 to 3
U9-02 Network Activity No signal output available
U9-04 Running Queue Number No signal output available
n
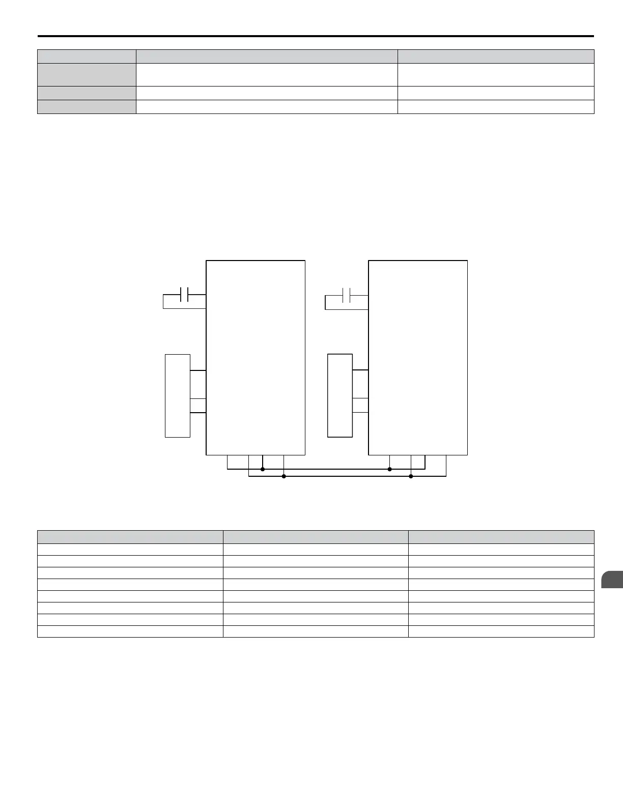
Simple Duplex System Application Example
A customer requires a duplex system with the following capabilities:
Control the system pressure using two drives (no PLCs).
Alternate drives everyday to even out the pump wear.
Toggle switch for Run command.
Each drive will have its own feedback transducer. Due to the shut-off valves, the network feedback should not be used as a
backup.
Pump is at optimal running speed when at fixed speed of 54.0 Hz.
Setpoint is 100 PSI, feedback scale is 145 PSI, start level is 80 PSI.
Drive A
15 HP
R+ S+ S-R-
A2
AC
+V
A1
SN
S1
PRESSURE FEEDBACK A
R+ S+ S-R-
A2
AC
+V
A1
SN
S1
PRESSURE FEEDBACK B
RUN
RUN
Drive B
15 HP
Figure 4.14 Simplified Wiring Diagram
Table 4.11 Related Parameters for Simple Duplex System Example
Description
Drive A
<1>
Drive B
<1>
Run Source: 1 (Terminals) b1-02 = 1 b1-02 = 1
Node Address H5-01 = 1 H5-01 = 2
Highest Node Address P9-25 = 2 P9-25 = 2
Pump Mode: 3 (Network) P1-01 = 3 P1-01 = 3
Feedback Source: 0 (Analog) P9-02 = 0 P9-02 = 0
Lag Fixed Speed P9-06 = 54.0 Hz P9-06 = 54.0 Hz
Setpoint U5-99 = 100 PSI U5-99 = 100 PSI
Start Level P1-04 = 80 PSI P1-04 = 80 PSI
<1> All other multiplexing and alternation parameters are set to default settings.
Duplex System with Fine Tuning Application Example
The customer would like to solve a pump cycling problem. Currently the second drive runs for 10 to 20 seconds at minimum
speed then shuts off, letting the first drive run at maximum. This will then run the second drive again and the cycle will repeat.
The customer must also account for system losses when running both pumps by boosting the setpoint by 5 PSI. In the event
that the pressure exceeds 125 PSI, the second drive should de-stage if both drives are running. If the pressure exceeds 140
PSI, a high feedback fault should occur and stop the drive.
There are multiple methods to handle the pump cycling problem:
Lower the lag fixed speed (P9-06)
4.8 iQpump Presets and Functions
YASKAWA TOEP YAIQPM 03B YASKAWA AC Drive - iQpump Micro User Manual
97
4
Start-Up Programming
& Operation

Table of Contents

Related product manuals