EasyManua.ls Logo

ABB ACS355 - Power Connections and Control Interfaces

ABB ACS355
406 pages
Print Icon
To Next Page IconTo Next Page
To Next Page IconTo Next Page
To Previous Page IconTo Previous Page
To Previous Page IconTo Previous Page
Loading...
Operation principle and hardware description 27
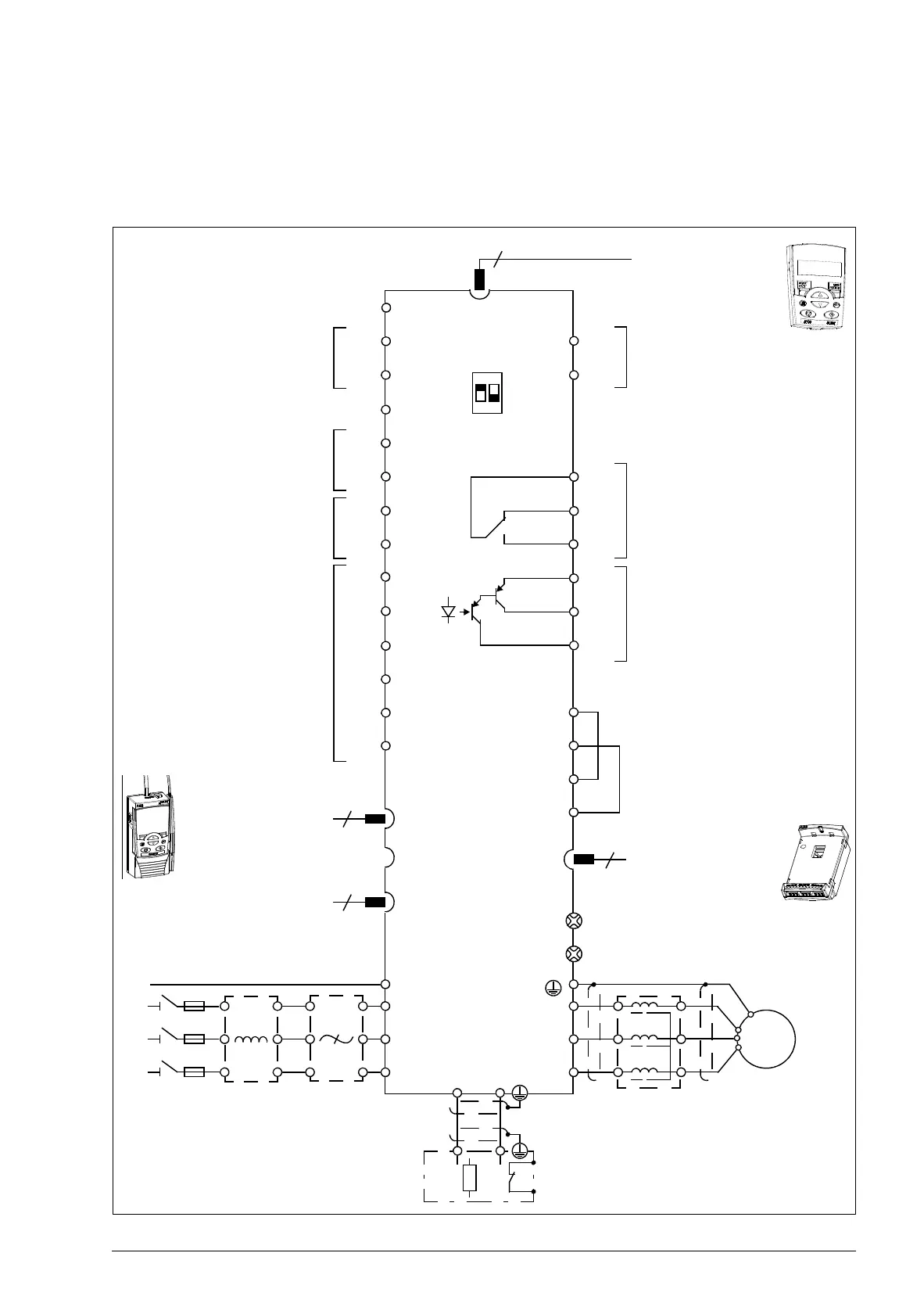
Power connections and control interfaces
The diagram gives an overview of connections. I/O connections are parameterable.
See chapter Application macros on page 109 for I/O connections for the different
macros and chapter Electrical installation on page 47 for installation in general.
RONO
RONC
3
9
DI1
DI2
DI3
DI4
DI5
+24 V
Aux. voltage output
+24 V DC, max. 200 mA
DOSRC
GND
DCOM
DOOUT
DOGND
Digital/frequency output,
PNP transistor type
30 V DC, max. 100 mA
Relay output
250 V AC / 30 V DC / 6 A
V
mA
GND
+10V
Reference voltage
+10 V DC, max. 10 mA
AI2
Analog input 2
GND
AI1
Analog input 1
0…10 V
SCR
Screen
Analog output
0…20 mA
AI1
AI2
L1
U2
V2
W2
AC motor
M
3 ~
EMC
VAR
EMC filter grounding screw
Varistor grounding screw
ROCOM
PROGRAMMABLE RELAY
AND DIGITAL OUTPUTS
Control panel
(RJ-45)
Modbus RTU
(RS-232)
11
17
18
19
20
21
22
AO
7
GND
8
12
13
14
15
16
10
L2
L3
PE
6
5
1
2
PROGRAMMABLE
DIGITAL INPUTS
4
FlashDrop
U1
V1
W1
S1
8
6
6
DI5 can also be used
as a frequency input
OUT1
OUT2
IN1
IN2
X1C:STO
Brake resistor
BRK+ BRK-
Fieldbus adapter
10
brake
chopper
1
2
3
4
Extension modules
MPOW-01
MREL-01
MTAC-01
Output
choke
Common DC
or
PE
ON
21
Input
choke
EMC
filter
3-phase
power
supply,
200…480
VAC

Table of Contents

Other manuals for ABB ACS355

Related product manuals