EasyManua.ls Logo

ABB ACS355 - Frame Size R3, IP20; NEMA 1

ABB ACS355
406 pages
Print Icon
To Next Page IconTo Next Page
To Next Page IconTo Next Page
To Previous Page IconTo Previous Page
To Previous Page IconTo Previous Page
Loading...
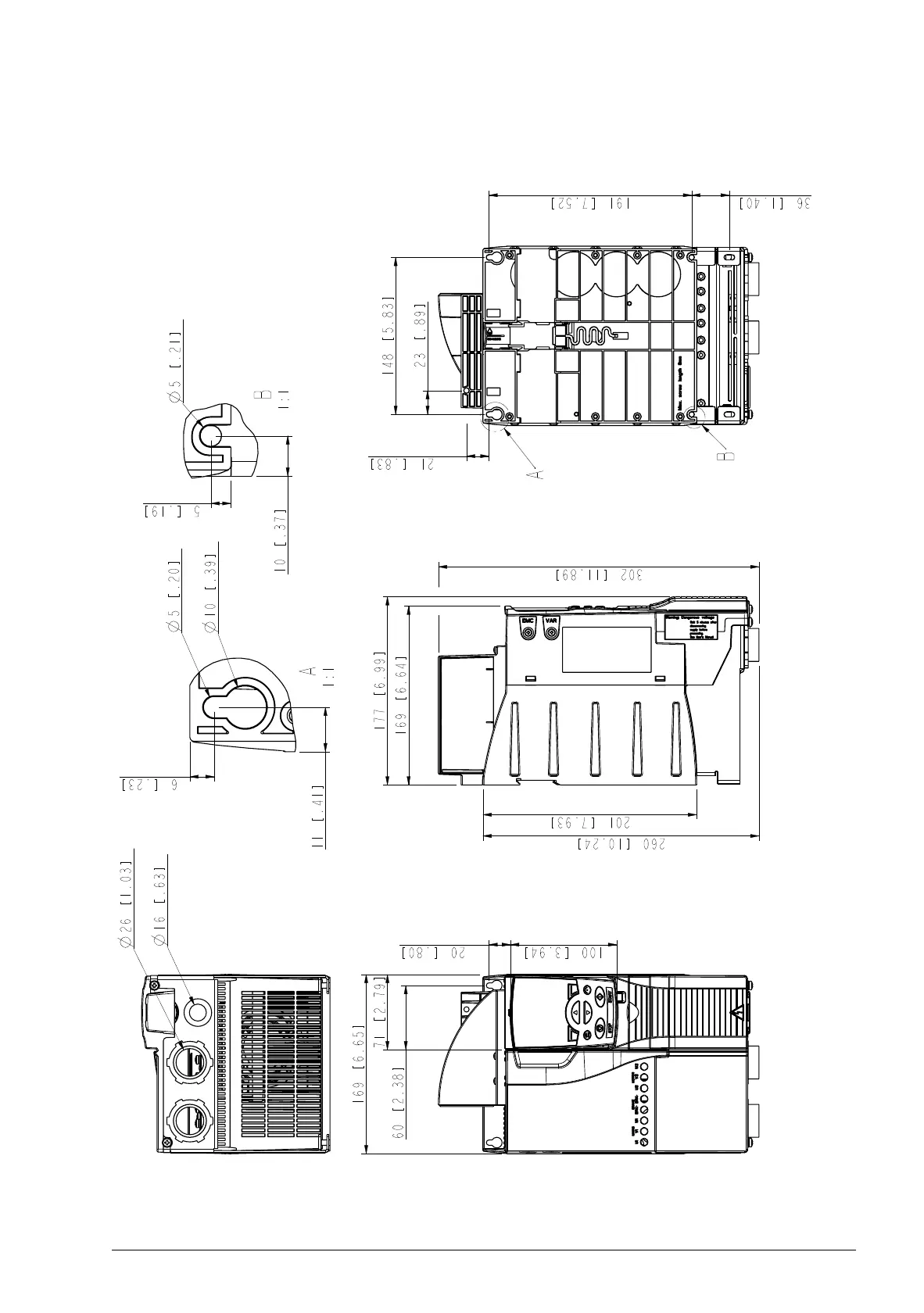
Dimension drawings 385
Frame size R3, IP20 / NEMA 1
Frame size R3, IP20 / NEMA 1
3AUA0000067787-A
1)
Extension modules add 26 mm (1.02 in) to the depth measure.
1)

Table of Contents

Other manuals for ABB ACS355

Related product manuals