EasyManua.ls Logo

ABB PVS980-MWS - Layout Drawing (Oil-Type Variant); Compartments

ABB PVS980-MWS
70 pages
Print Icon
To Next Page IconTo Next Page
To Next Page IconTo Next Page
To Previous Page IconTo Previous Page
To Previous Page IconTo Previous Page
Loading...
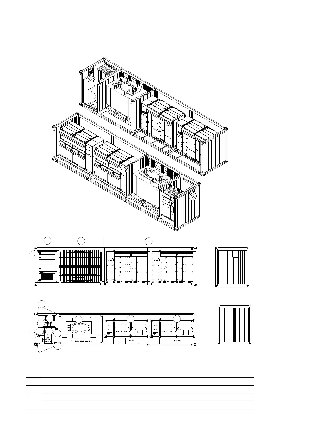
20 Hardware description
Layout drawing (oil-type variant)
Compartments
Sec. Description
A Inverter section
B Transformer enclosure
C Low-voltage enclosure
D Medium-voltage enclosure
1 1
2
2
3
4
5
6
7
8
9
10
C
B
A
D

Table of Contents

Related product manuals