EasyManua.ls Logo

ABB PVS980-MWS - External Grounding Connections

ABB PVS980-MWS
70 pages
Print Icon
To Next Page IconTo Next Page
To Next Page IconTo Next Page
To Previous Page IconTo Previous Page
To Previous Page IconTo Previous Page
Loading...
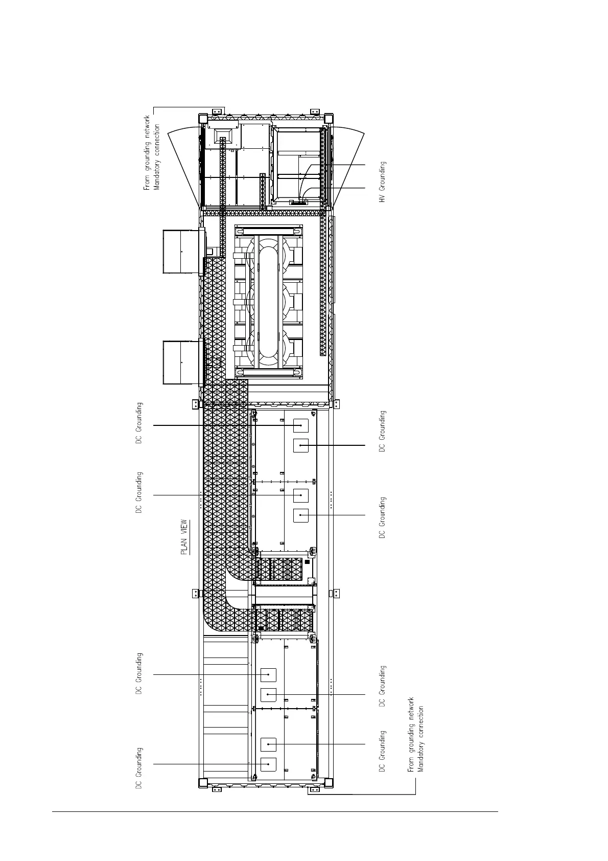
64 Dimension drawings
External grounding connections

Table of Contents

Related product manuals