EasyManua.ls Logo

ABB PVS980-MWS - General Layout

ABB PVS980-MWS
70 pages
Print Icon
To Next Page IconTo Next Page
To Next Page IconTo Next Page
To Previous Page IconTo Previous Page
To Previous Page IconTo Previous Page
Loading...
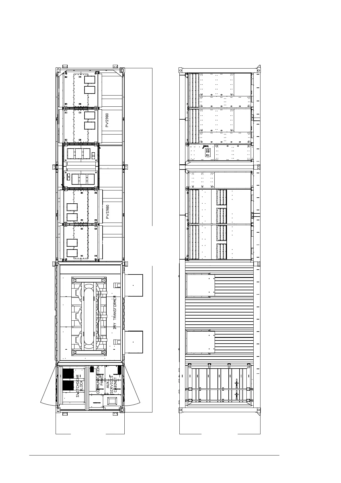
66 Dimension drawings
General layout
12190 mm
2900 mm 2440 mm

Table of Contents

Related product manuals