EasyManua.ls Logo

ahlmann AS 210 - Page 84

Default Icon
116 pages
Print Icon
To Next Page IconTo Next Page
To Next Page IconTo Next Page
To Previous Page IconTo Previous Page
To Previous Page IconTo Previous Page
Loading...
2-4
3-4
10-3
10.1 - 06.2005
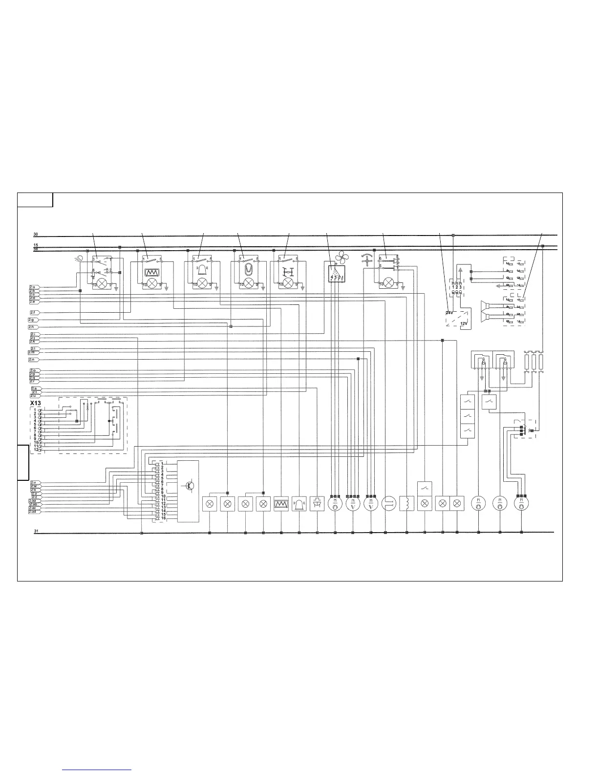
Elektrik-Schaltplan/Schéma électrique/Wiring diagramm/Elektrisch schakelschema
49 50 51 52 5453
55
56 57
61
S220/S221/S230/S231/Z200
74
68697071727375767778798081828384858687
62
67
6364
65
66
5860
59
88

Table of Contents

Related product manuals