EasyManua.ls Logo

ahlmann AS 210 - Page 85

Default Icon
116 pages
Print Icon
To Next Page IconTo Next Page
To Next Page IconTo Next Page
To Previous Page IconTo Previous Page
To Previous Page IconTo Previous Page
Loading...
2-4
10-4
10.1 - 06.2005
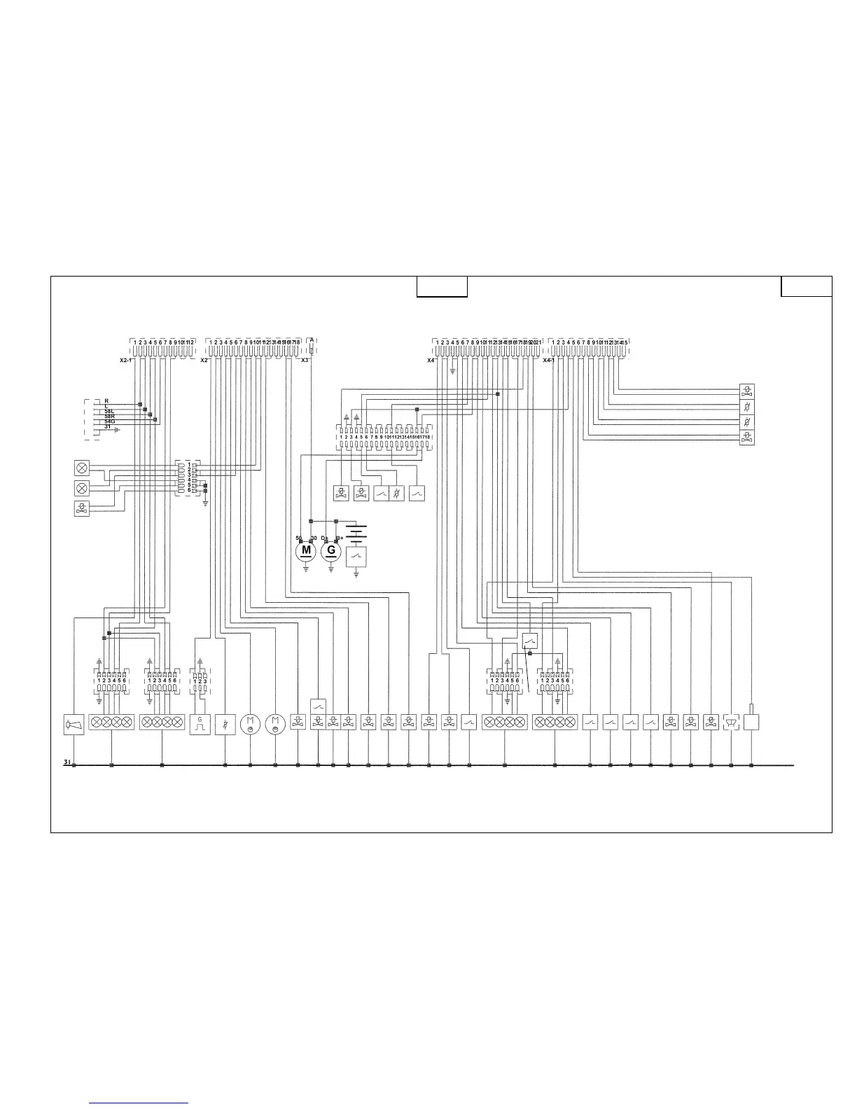
Elektrik-Schaltplan/Schéma électrique/Wiring diagramm/Elektrisch schakelschema
4-4
S220/S221/S230/S231/Z200
89 90
103104105106107108109110111113114115116117118119120121122124125126127128129130131
98
Y1Y2
DS1DS4DS2
Y14Y3 Y63Y64Y11
Y50
Y10Y7G2 Y12
112
Y5
91
92
93 94 95 96 97
101
99
100
102
123
132
133
134
135
Y15
Y13
Y6
TS1
DS3

Table of Contents

Related product manuals