EasyManua.ls Logo

Allen-Bradley PowerFlex 7000 - Snubber Resistance (SGCT Device)

Allen-Bradley PowerFlex 7000
218 pages
Print Icon
To Next Page IconTo Next Page
To Next Page IconTo Next Page
To Previous Page IconTo Previous Page
To Previous Page IconTo Previous Page
Loading...
70 Rockwell Automation Publication 7000-UM202D-EN-P - May 2018
Chapter 2 Power Component Definition and Maintenance
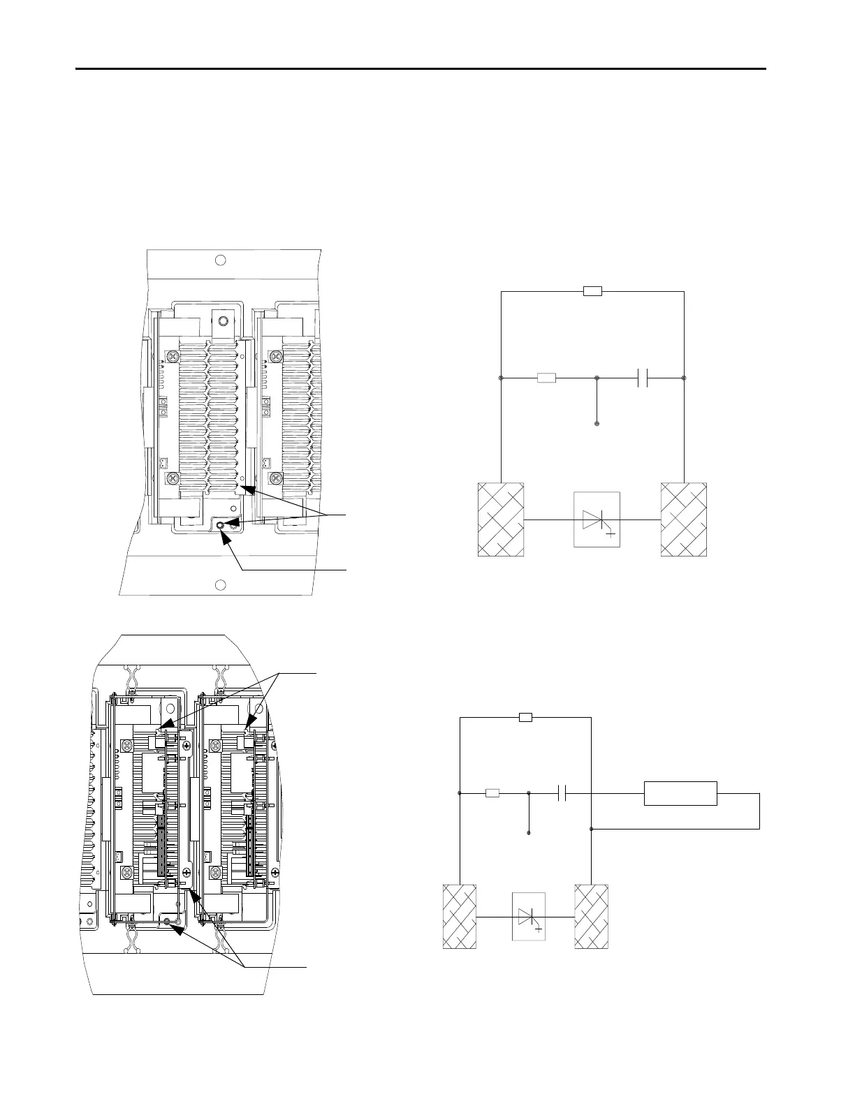
Snubber Resistance (SGCT Device)
Access to the snubber resistor is not required to test the resistance. The
snubber circuit test point is located within the PowerCage module under the
heatsinks. For each device, there is one test point. To verify the resistance,
measure the resistance between the test point and the heatsink above.
Figure 57 - Snubber Resistor Test
Figure 58 - Snubber Resistor Test (with SPS Board)
Snubber test point
Measure resistance
between heatsink
and test point
Heatsink Heatsink
SGCT
Snubber
Resistor
Snubber
Capacitor
Sharing Resistor
Test Point
Resistance value between
heatsink and test point is
Snubber Resistance
Heatsink Heatsink
Snubber
Resistor
Snubber
Capacitor
Sharing Resistor
J1
SPS Board
1
2
SGCT
Test Point
Resistance Value between two
heatsinks is sharing resistance
in parallel with Anode-Cathode
Resistance

Table of Contents

Related product manuals