EasyManua.ls Logo

Ammann AV 70 X - Page 159

Ammann AV 70 X
162 pages
Print Icon
To Next Page IconTo Next Page
To Next Page IconTo Next Page
To Previous Page IconTo Previous Page
To Previous Page IconTo Previous Page
Loading...
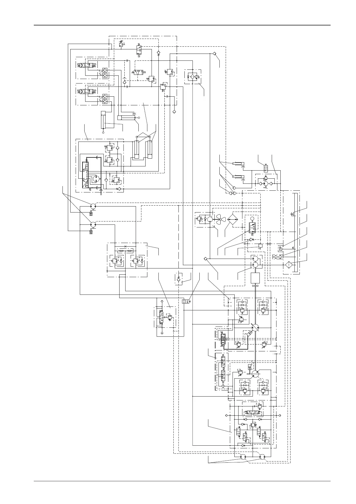
153AV 70 X
MAINTENANCE MANUAL
Dn10
Dn10
Dn10
Dn16
Dn10
3 bar
Dn10
Dn14
Dn10
Dn13
Dn13
Dn10
1
A
2
B
1
2
A
B
25
25
P1
P2
1
3
2
1
3
2
3 bar
200
0.5 bar
0.5 bar
M3
T
MB
MA
1 MPa
13 l/min
A
C1
45
330
330
22
M3MB
B
A
M4M5
C2
MA L1L2
E
E
L3L2 MA
L1L4
S2S1 T
C2C1
M4M5
A
B
MBM3
26
400
78
13 l/min
1 MPa
M
B
B
M
A
A
Dn16
Ø0.5 mm
Dn6
Dn6
Ø25 - 230
Dn6
Dn16
180
100
3 bar
9.5
1117
2200
ot/min
Dn13
Dn13
Dn19
Dn8
i=1.0
40°C 55°C
Dn19
Dn16
Dn32
Dn16
Dn10
Dn13
100
20
Dn10
Ø0.5 mm
Ø25 - 230
400
0.5 bar
D
B
°C
Dn16
Dn16
Dn16
Dn6Dn6
°C
Dn16
400
Dn13
Dn10
Dn8
Dn8
A5
100
100
13 bar
90/45-125
50/25-130
A1
A2
B2
B1
T1
X
P1
T3PP
M
20 bar
A B
P T
TP
BA
80/40-200
LD
R
L
TP
175
240 240
80/40-200
Dn13
Dn13
Dn8
Dn13
Dn13
Dn13
Dn13
Dn13
Dn13
Dn10
Dn10
A4
190
T2
100
Ø1 mm
Dn16
Dn16
Dn16
Dn16
Dn10
Dn10
3.5 bar
30 30
A
A
D
B
D
B
2.7
bar
420
C
A
B
P1
P
1,2 mm
S
420
C
T
P
5
P
30
25
1
28
22
19
8
3
2423 20 26
27
29
35
257
3433 11
21
31
32
9
10
12
14
17
16
18
6
15
REAR
FRONT
211391en
EDGE CUTTERCRAB
REAR
LEFT
HYDROMOTOR
FRONT
RIGHT
HYDROMOTOR

Table of Contents

Related product manuals