EasyManua.ls Logo

AMS 39 - Page 10

Default Icon
61 pages
Print Icon
To Next Page IconTo Next Page
To Next Page IconTo Next Page
To Previous Page IconTo Previous Page
To Previous Page IconTo Previous Page
Loading...
L0118G
1-4
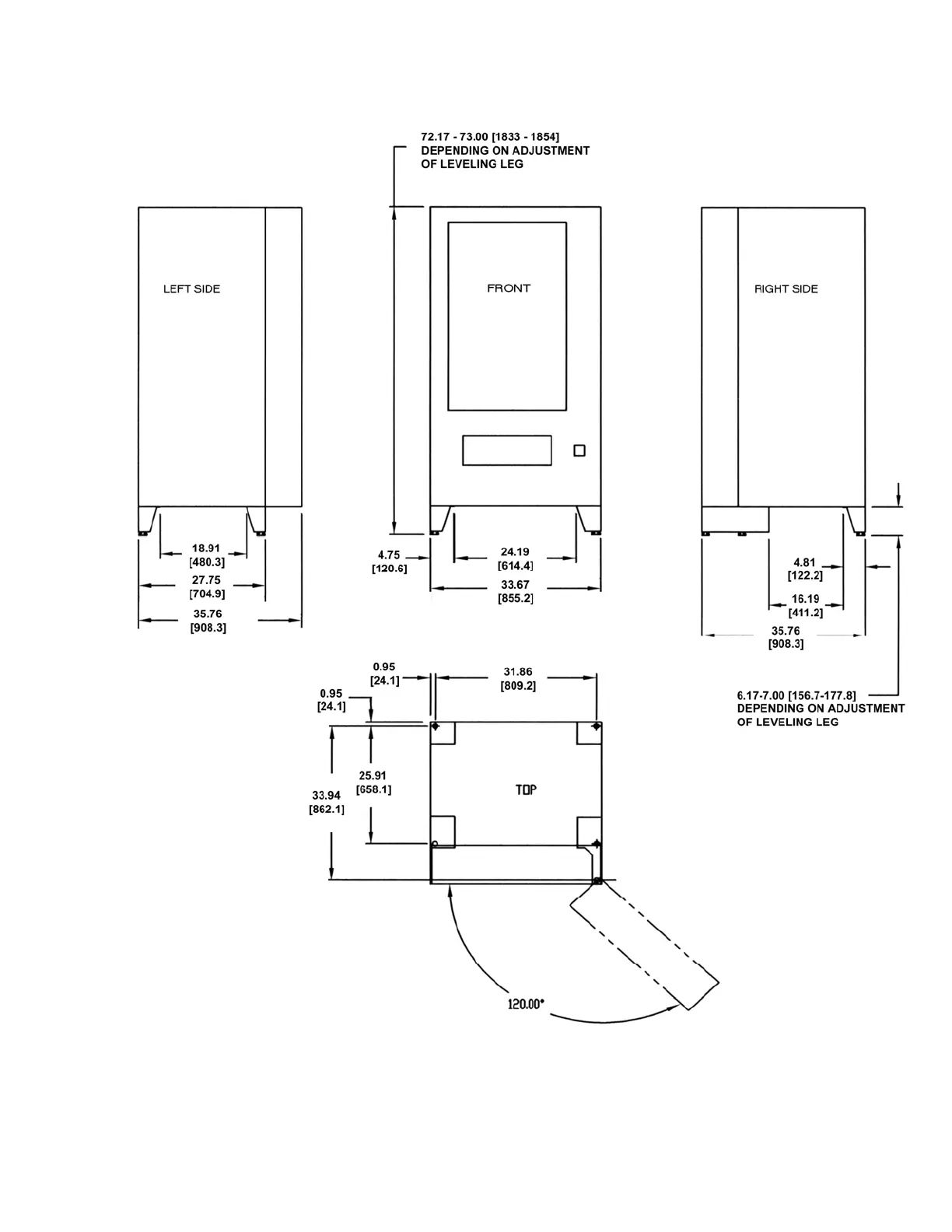
Figure 1.2 35” CABINET DIMENSIONS

Table of Contents

Related product manuals