EasyManua.ls Logo

CaptiveAire TANK - Appliance with Overhead Salamander

Default Icon
80 pages
Print Icon
To Next Page IconTo Next Page
To Next Page IconTo Next Page
To Previous Page IconTo Previous Page
To Previous Page IconTo Previous Page
Loading...
29
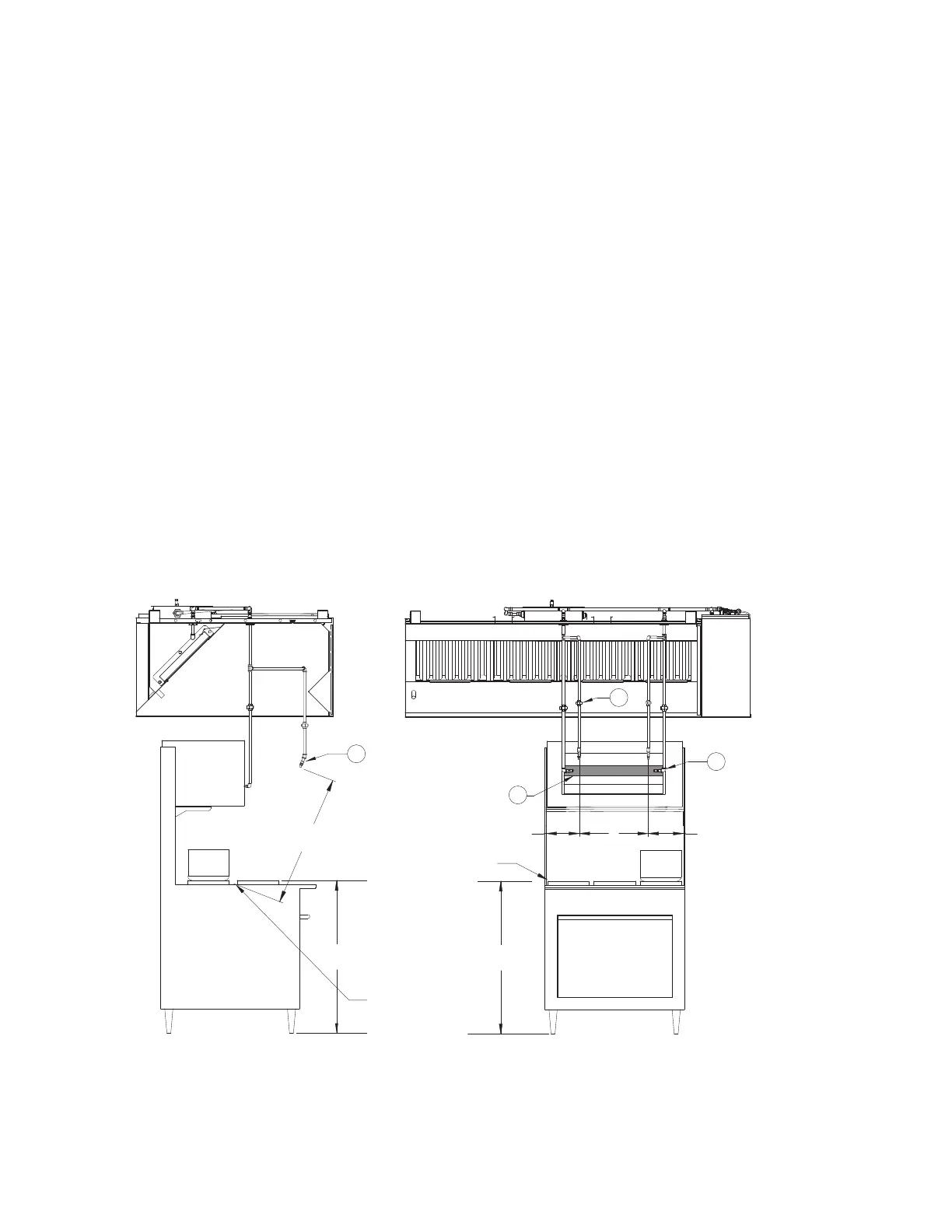
Appliance with Overhead Salamander
The following Salamander/Cheesemelter example does not require overlapping protection. Unlike appliances with
an exposed flat cooking surface, these appliances have an internal cooking surface and only have a small opening
in the face or end of the appliance.
To cover internal hazards posed by these appliances, an Overlapping Female (OL-F) nozzle (previously 3070-3/
8H-10-SS) must be placed at the opening and aimed at the opposite rear corner of the appliance. No more than
two nozzles can be utilized for a single drop. Should the appliance have an area over 1050 in
2
, an additional nozzle
will be required on the opposite side of the appliance for added fire protection, refer to Figure 30.
Nozzles covering Cheesemelters/Salamanders placed above an appliance can be branched off from existing
overlapping nozzles or use dedicated nozzle protection. Appliance with Overhead Salamander equipment type will
use dedicated nozzle protection. This nozzle is aimed at the centerline of the cooking surface, a minimum of 35”-
50” away (DIM A).
All dimensions fixed unless otherwise noted (e.g., min/max).
1. Pipe and fittings above the hood will be 1/2” copper pipe/Pro-Press, Grade L copper tubing/fittings.
2. Pipe and fittings inside the hood capture volume will be 3/8” NPT stainless steel or chrome-plated black iron.
No sleeving permitted.
3. Appliance coverage piping that is field piped - unions, elbows, and nozzles factory provided.
4. Install union in pipe leading to nozzle to allow for appliance removal and cleaning.
5. Additional nozzles may be utilized for supplemental appliance specific protection. No more than two (2)
nozzles may be used on a single drop.
6. Appliance drop fittings may be sealed with pipe dope or Teflon tape.
7. The spacing between nozzles will be either 36” or 30” maximum, based on the overlapping protection required
for the appliance hazard below the obstruction.
Figure 30 - Appliance with Overhead Salamander
1. Overlapping Nozzle (OL-F)
2. Salamander Protection Nozzle (OL-F)
3. Internal Cooking Surface
4. Union in Pipe
Cooking Appliance
Hazard
Height
Hazard
Height
1
DIM A
35” MIN/50” MAX
Hazard
Centerline
Cooking
Surface
12"
MAX
30”/36"
MAX
12"
MAX
3
2
4

Table of Contents

Related product manuals