EasyManua.ls Logo

Climax BB5000 - Page 139

Default Icon
162 pages
Print Icon
To Next Page IconTo Next Page
To Next Page IconTo Next Page
To Previous Page IconTo Previous Page
To Previous Page IconTo Previous Page
Loading...
P/N 92974, Rev. 1 Page 123
F
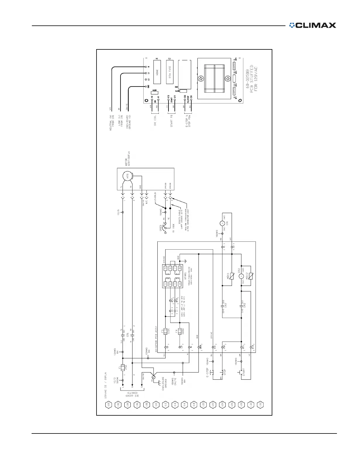
IGURE C-4. BB4500-BB5000 EIBENSTOCK CONTROLLER 2ND GEN 120V CE ASSEMBLY (P/N 88038 C00466)

Table of Contents

Other manuals for Climax BB5000

Related product manuals