EasyManua.ls Logo

Comdial G0408 - Page 91

Default Icon
438 pages
Print Icon
To Next Page IconTo Next Page
To Next Page IconTo Next Page
To Previous Page IconTo Previous Page
To Previous Page IconTo Previous Page
Loading...
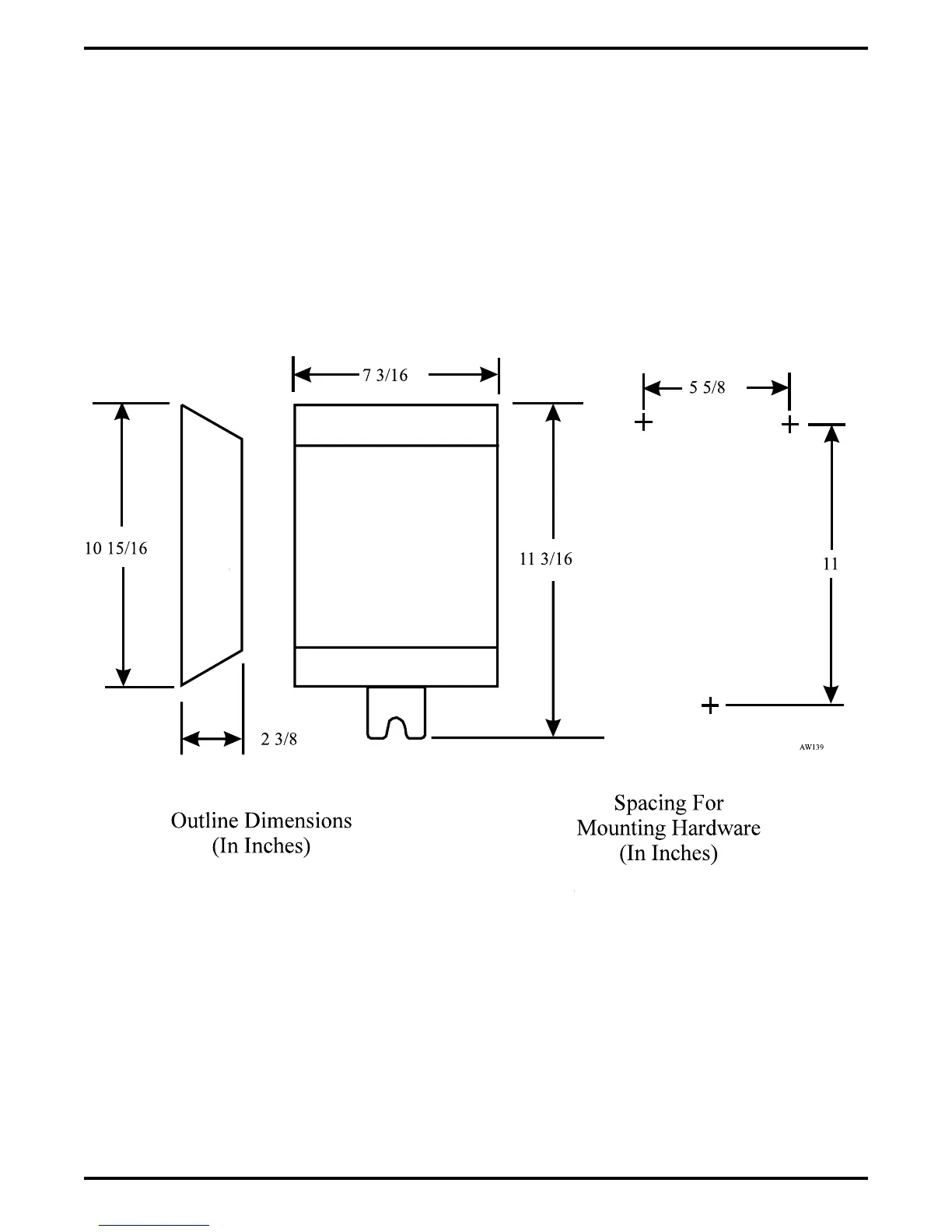
Figure 2–28: Detailing The ATI-D Dimensions
IMI66–107 Digital Telephone System
Installing The DSU 2 – 61

Table of Contents