EasyManua.ls Logo

Daikin LXE10E136 - Controller Software Download Mode

Daikin LXE10E136
172 pages
Print Icon
To Next Page IconTo Next Page
To Next Page IconTo Next Page
To Previous Page IconTo Previous Page
To Previous Page IconTo Previous Page
Loading...
3-26
14. CONTROLLER SOFTWARE DOWNLOAD MODE
The data on personal computer and a controller are interchanged in this mode.
For details, see the Operation Manual for Personal computer software.
Downloading is possible even in "3. BATTTERY MODE". page 3-10.
<Key operation to enter/exit>
──
20XX
(The A.D. year currently set)
XX
(The month currently set)
XX
(The day currently set)
XX
(The hour currently set)
XX
(The minute currently set)
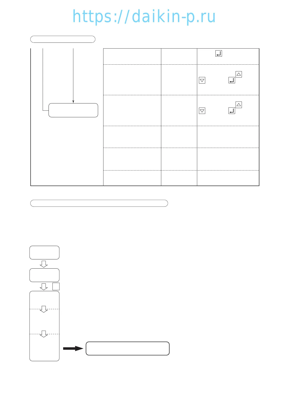
SET TIME
YEAR
MONTH
dAY
HOUR
MINUTE
Press the key to go to the
subsequent "Year" setting screen.
The value can be increased or
decreased by using the key and
key. Press the key to
determine the selection and go to the
subsequent "Month" setting screen.
The value can be increased or
decreased by using the key and
key. Press the key to
determine the selection and go to the
subsequent "Day" setting screen.
Make the setting in the same
manner as described above.
Determine the selection to go to the
subsequent "Hour" setting screen.
Make the setting in the same
manner as described above.
Determine the selection to go to the
subsequent "Minute" setting screen.
Make the setting in the same
manner as described above.
Controller time input
I/O ON
Power off
Unit off
All Lighting
(for 3 sec.)
Preparation
(for 18 sec.)
Current
indication
1
Circuit Breaker ON
14 Downloading from controller
13. INPUT DATA MODE (Continued from the previous page)
03LXE10E100(13-26)E.qx08.8.285:51PMページ3-26
https://daikin-p.ru

Table of Contents

Related product manuals