EasyManua.ls Logo

Daikin LXE10E136 - Inside

Daikin LXE10E136
172 pages
Print Icon
To Next Page IconTo Next Page
To Next Page IconTo Next Page
To Previous Page IconTo Previous Page
To Previous Page IconTo Previous Page
Loading...
2-5
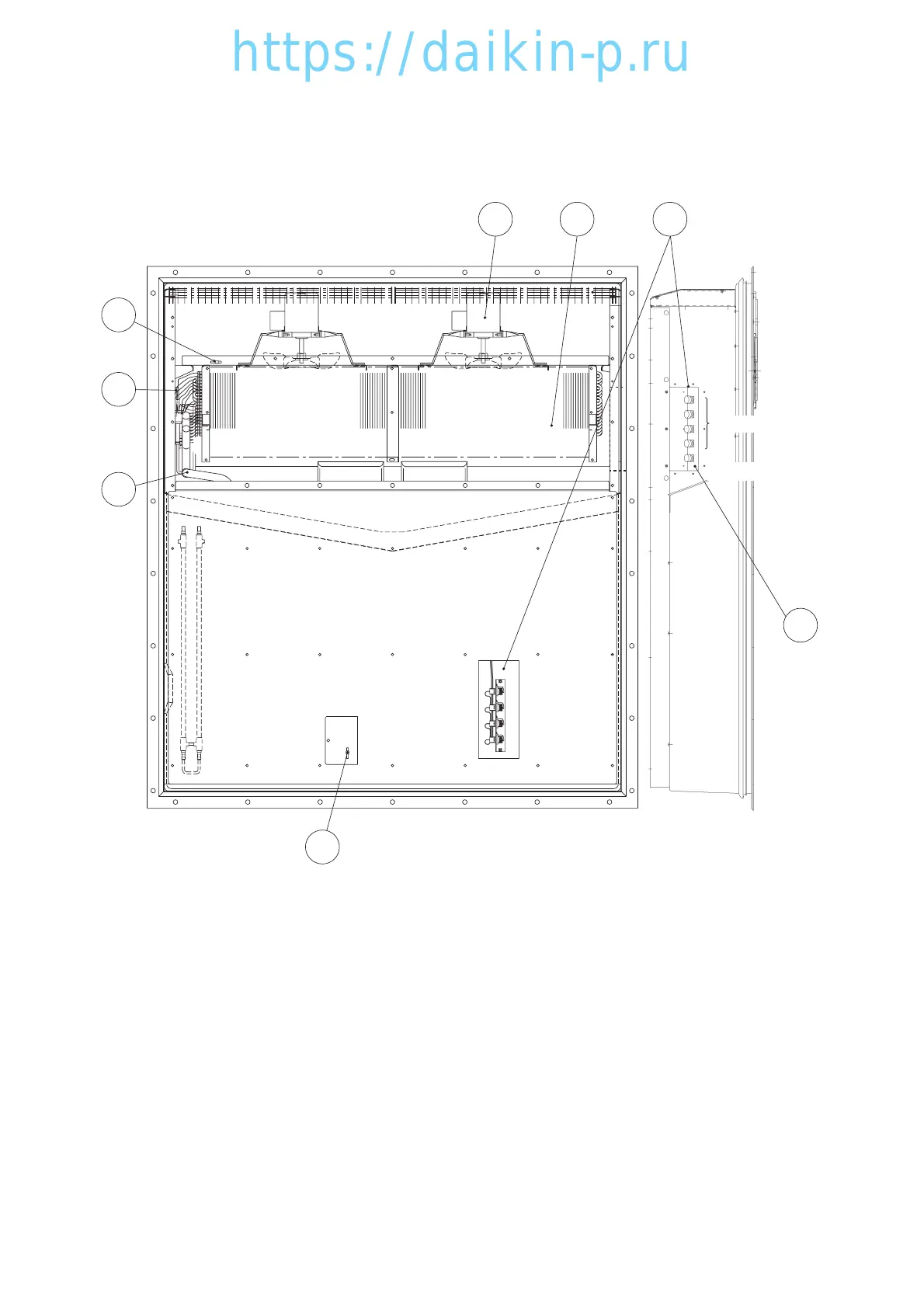
2.2.2 Inside
LXE10E
q Evaporator fan motor (EFM)
w Evaporator
e Supply air temperature sensor (SS)
Data recorder supply air temperature sensor (DSS)
Temperature recorder supply air temperature sensor (RSS,
optional)
r Evaporator outlet pipe temperature sensor (EOS)
t Evaporator inlet pipe temperature sensor (EIS)
y Return air temperature sensor (RS)
Data recorder return air temperature sensor (DRS)
Temperature recorder return air temperature sensor (RRS,
optional)
u USDA receptacle [Optional]
Lateral and rear type depending on the
models
i PC port receptacle
7
8
6
2
3
1
5
4
USDA receptacle
PC port receptacle
02LXE10E100(1-15)E.qx08.8.285:53PMページ2-5
https://daikin-p.ru

Table of Contents

Related product manuals