EasyManua.ls Logo

Danfoss VLT AHF 005 - Page 87

Danfoss VLT AHF 005
156 pages
Print Icon
To Next Page IconTo Next Page
To Next Page IconTo Next Page
To Previous Page IconTo Previous Page
To Previous Page IconTo Previous Page
Loading...
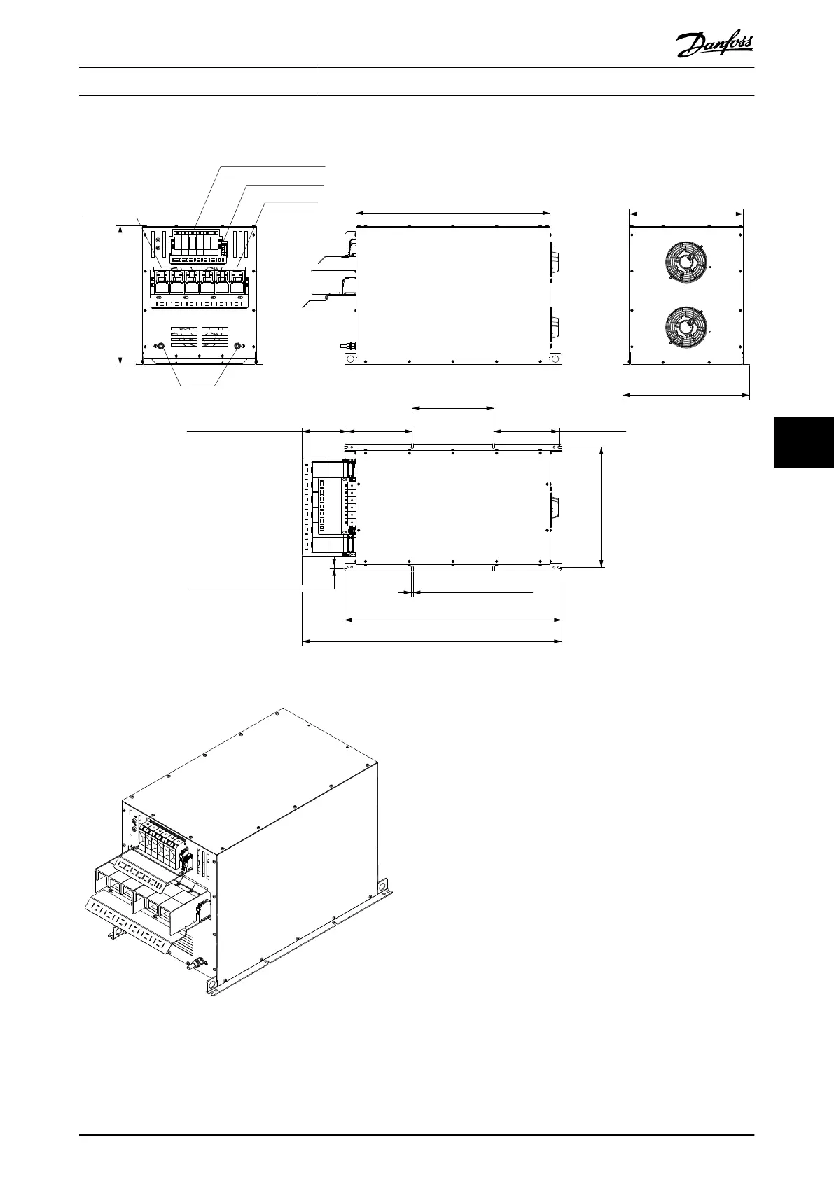
X1 Mains 300 mm
2
X2 Drive 300 mm
2
A/B Temperature 2.5 mm
2
X3/X4 Capacitor disconnect 120 mm
2
513.7 ±2.5 mm [20.2 ±0.1 in]
PE M12
F1
F2
715.0 ±2.5 mm [28.1 ±0.1 in]
420.0 ±2.5 mm [16.5 ±0.1 in]
468.0 ±2.5 mm [18.4 ±0.1 in]
165.0 ±2.5 mm [6.5 ±0.1 in] 240.0 ±1.0 mm [9.4 ±0.04 in]
300.0 ±1.0 mm [11.8 ±0.04 in]
240.0 ±1.0 mm [9.4 ± 0.04 in]
9.0 ±1.0 mm [0.4 ±0.04 in]
9.0 ±1.0 mm [0.4 ±0.04 in]
443.0 ±2.5 mm [17.4 ±0.1 in]
800.0 ±2.5 mm [31.5 ±0.1 in]
955.0 ±4.0 mm [37.6 ±0.16 in]
130BE448.10
Illustration 7.55 IP20 X8 Internal Fan 2
130BE447.10
Illustration 7.56 IP20 X8 Internal Fan 2, 3D View
Specications Design Guide
MG80C502 Danfoss A/S © 10/2016 All rights reserved. 85
7 7

Table of Contents

Related product manuals