EasyManua.ls Logo

Danfoss VLT AHF 005 - Terminology Used in Mechanical Dimensions

Danfoss VLT AHF 005
156 pages
Print Icon
To Next Page IconTo Next Page
To Next Page IconTo Next Page
To Previous Page IconTo Previous Page
To Previous Page IconTo Previous Page
Loading...
X1 Mains 300 mm
2
X2 Drive 300 mm
2
A/B Temperature 2.5 mm
2
X3/X4 Capacitor disconnect 120 mm
2
443 mm [17.4 in]
468 mm [18.4 in]
PE M12
800 mm [31.5 in]
240 mm [9.4 in]
240 mm [9.4 in]
300 mm [11.8 in]
900 mm ±3 mm [35.4 in ±0.12 in]
800 mm [31.5 in]
9 mm [0.4 in]
9 mm [0.4 in]
490 mm ±4 mm [19.3 in ±0.16 in]
507 mm ±4 mm [19.9 in ±0.16 in]
X1.1 X1.2 X1.3 X2.1 X2.2 X2.3
X3.1
X3.2
X3.3
X4.1
X4.2
X4.3
AB
130BD443.12
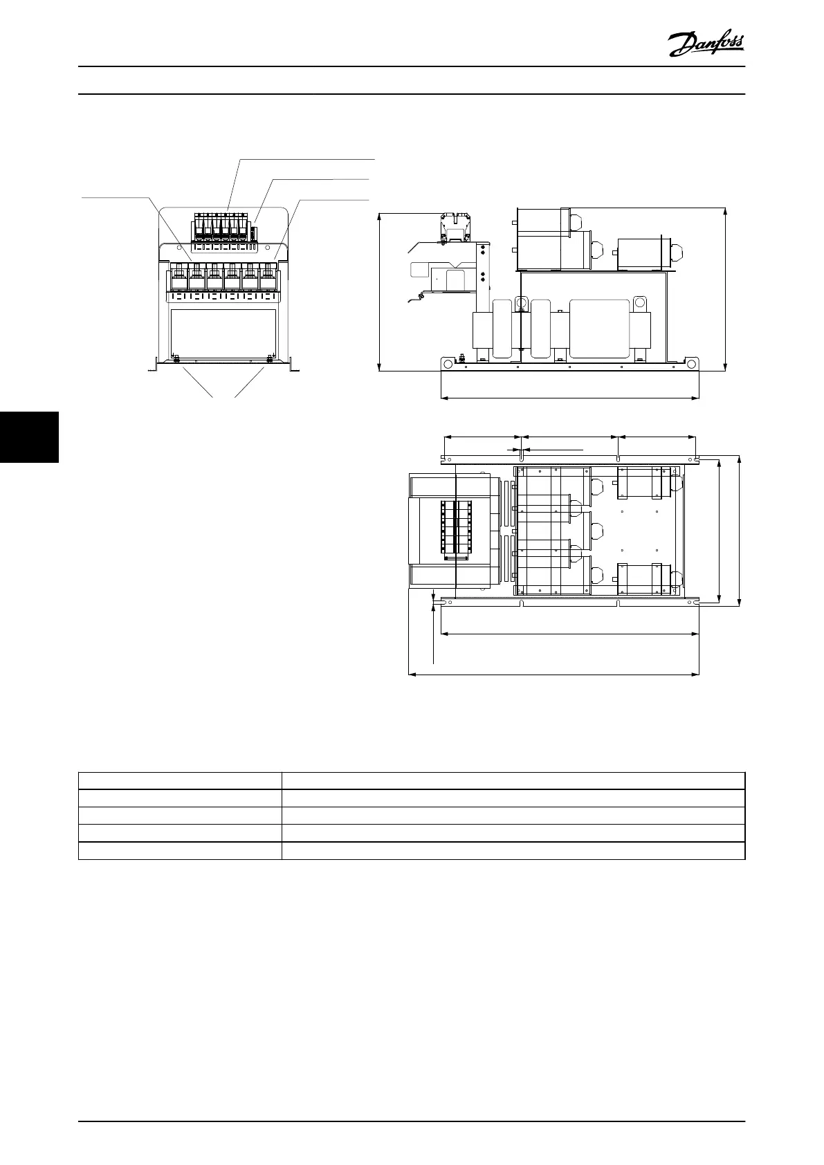
Illustration 7.127 IP00 X8
7.2.6 Terminology used in Mechanical Dimensions
Value Description
if1 Internal fan 1
if2 Internal fan 2
ef1 External fan 1
ef2 External fan 2
Table 7.8 Terminology used in Mechanical Dimensions
See chapter 4.1.4 Ventilation and Cooling Requirements for further details on fan concepts.
Specications
VLT
®
Advanced Harmonic Filter AHF 005/AHF 010
124 Danfoss A/S © 10/2016 All rights reserved. MG80C502
77

Table of Contents

Related product manuals