EasyManua.ls Logo

Danfoss VLT FC 103 - E4 H Exterior Dimensions

Danfoss VLT FC 103
170 pages
Print Icon
To Next Page IconTo Next Page
To Next Page IconTo Next Page
To Previous Page IconTo Previous Page
To Previous Page IconTo Previous Page
Loading...
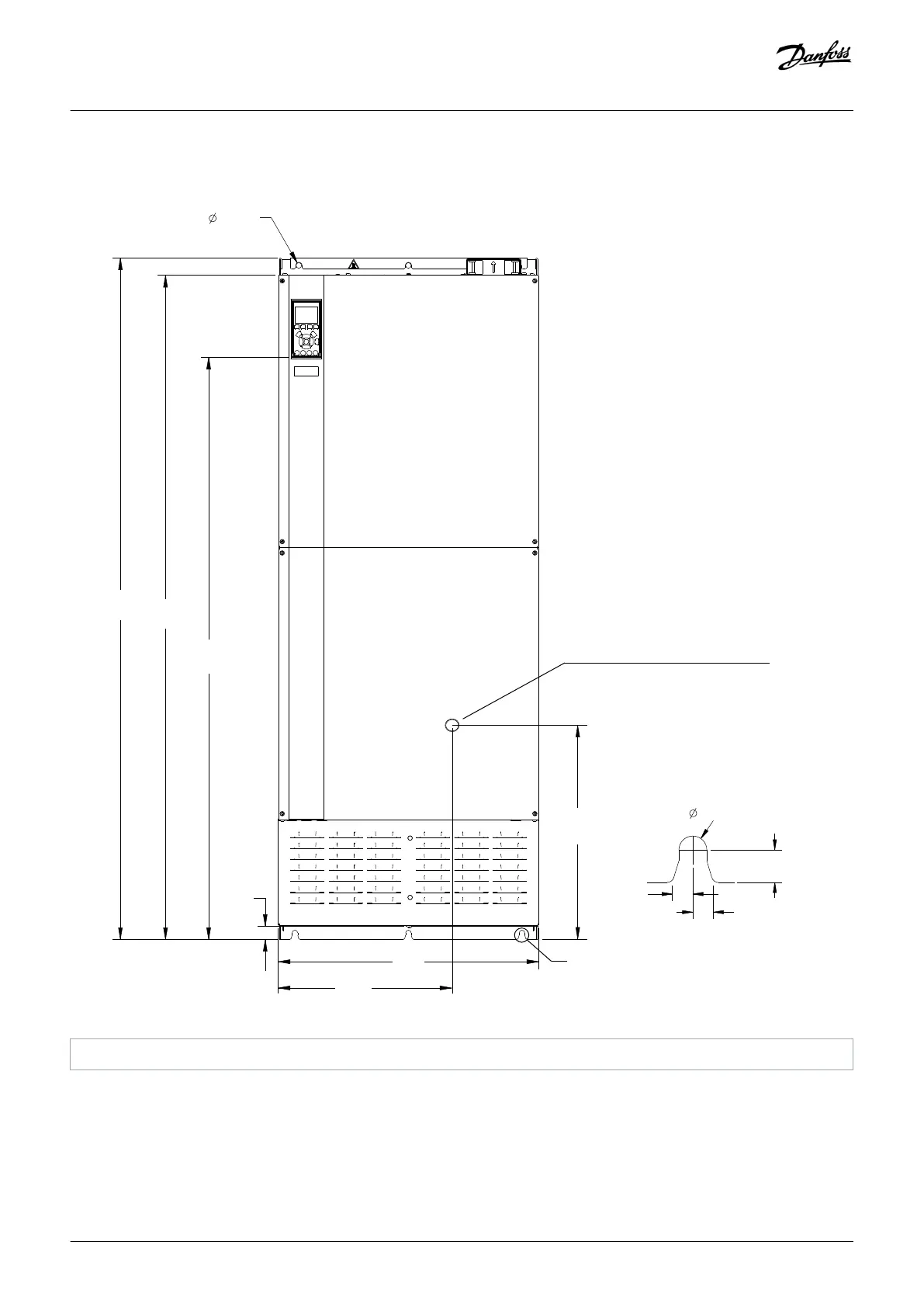
9.8.4 E4h Exterior Dimensions
e30bf664.11
13 (0.5)
10 (0.4)
10 (0.4)
15 (0.6)
A
A
1578
(62.1)
1537
(60.5)
1348
(53.1)
30
(1.2)
604
(23.8)
13 (0.5)
3X
447
(17.6)
337
(13.3)
1
1 Disconnect option only
Illustration 64: Front View of E4h
Specifications
Operating Guide | VLT® Refrigeration Drive FC 103
AQ275652766279en-000101 / 130R0707
152 | Danfoss A/S © 2020.01

Table of Contents

Other manuals for Danfoss VLT FC 103

Related product manuals