EasyManua.ls Logo

Deep Sea Electronics Plc 5210 - Installation Instructions; Panel Cut-Out Dimensions; Cooling and Ventilation Requirements; Module Unit Dimensions

Deep Sea Electronics Plc 5210
55 pages
Print Icon
To Next Page IconTo Next Page
To Next Page IconTo Next Page
To Previous Page IconTo Previous Page
To Previous Page IconTo Previous Page
Loading...
DSE Model 5210 Automatic Start Engine Management and Instrumentation System Operators Manual
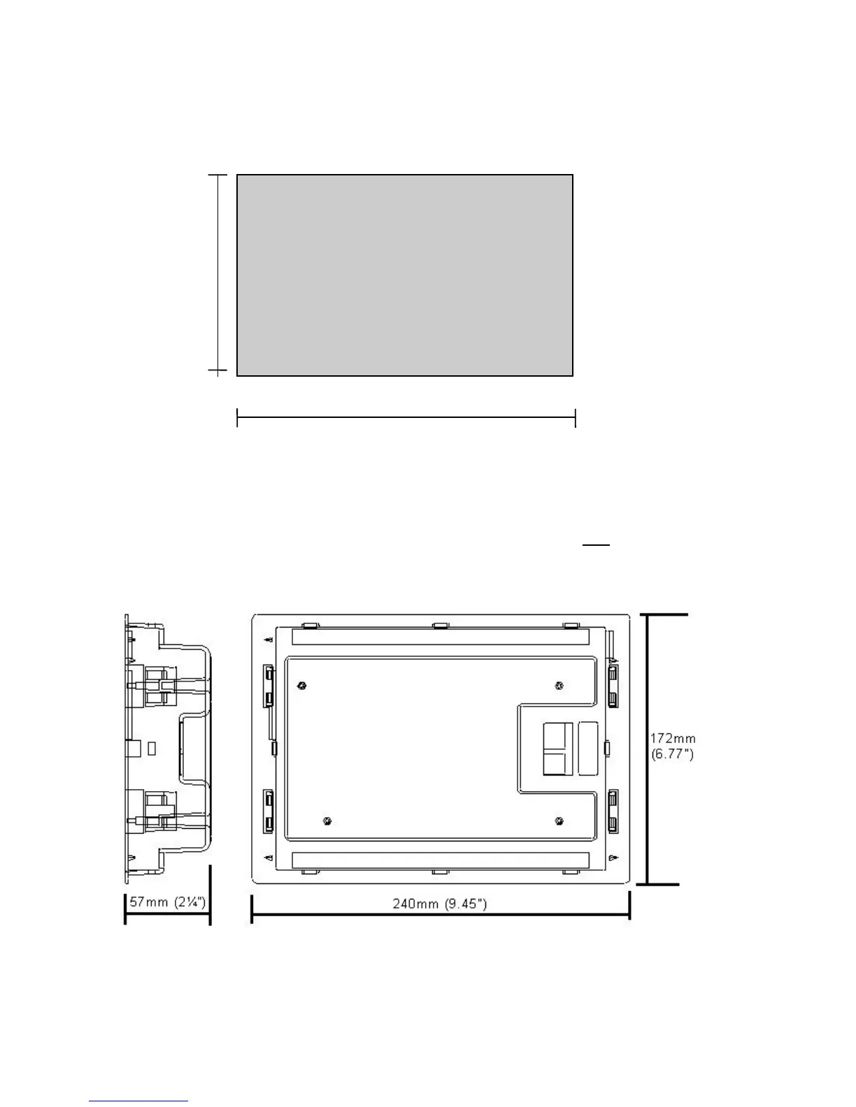
7 INSTALLATION INSTRUCTIONS
The model DSE 5210 Module has been designed for front panel mounting. Fixing is by 4 clips for easy assembly.
7.1 PANEL CUT-OUT
160.00mm
(6.3”)
220.00mm
(8.7”)
FIG 3
Maximum panel thickness – 8mm (0.3”)
In conditions of excessive vibration the module should be mounted on suitable anti-vibration mountings.
7.2 COOLING
The module has been designed to operate over a wide temperature range -30 to +70º C. Allowances should be
made for the temperature rise within the control panel enclosure. Care should be taken NOT to mount possible
heat sources near the module unless adequate ventilation is provided. The relative humidity inside the control
panel enclosure should not exceed 95%.
7.3 UNIT DIMENSIONS
Panel cutout 220mm x 160mm ( 8.7” x 6.3”)
FIG 4
5210 OPERATING MANUAL ISSUE 2 21/05/2003 AM
26

Table of Contents

Related product manuals