EasyManua.ls Logo

Electrolux R134A - Page 88

Electrolux R134A
94 pages
Print Icon
To Next Page IconTo Next Page
To Next Page IconTo Next Page
To Previous Page IconTo Previous Page
To Previous Page IconTo Previous Page
Loading...
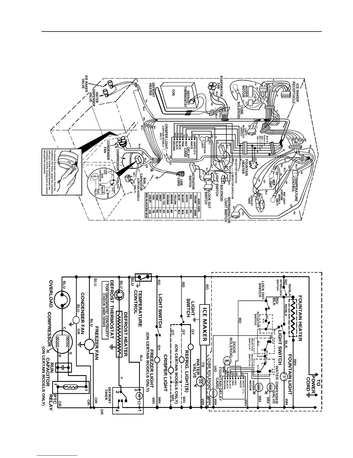
7-3
SCHEMATIC WIRING DIAGRAM
PICTORIAL WIRING DIAGRAM
ALLOW 10 PERCENT TOLERANCE ON ALL RESISTANCES
DISCONNECT THE UNIT FROM THE POWER SOURCE
SCHEMATIC - RWD2

Table of Contents

Other manuals for Electrolux R134A

Related product manuals