EasyManua.ls Logo

ESAB Cutmaster 80 - Appendix 5: System Schematic, 400 V Units

ESAB Cutmaster 80
120 pages
Print Icon
To Next Page IconTo Next Page
To Next Page IconTo Next Page
To Previous Page IconTo Previous Page
To Previous Page IconTo Previous Page
Loading...
ESAB CUTMASTER 80
 APPENDIX Manual0-5396
A-6
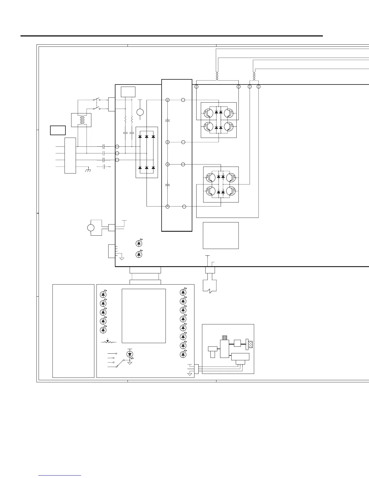
APPENDIX5:SYSTEMSCHEMATIC,400VUNITS
A-12767_AA
A-12767_AA
5
5
4
4
3
3
2
2
1
1
D
D
C
C
B
B
A
A
24VAC
+12VDC
+12VDC
+12VDC
+12VDC
+12VDC
+12VDC
+12VDC
+5VDC
+12VDC
DWG No:
Sheet
of
SupersedesScale
Date:
Drawn: References
DateByRevisionsRev
PCB No:
Assy No:
NOTE: UNLESS OTHERWISE SPECIFIED -
1. RESISTOR VALUES ARE EXPRESSED IN OHMS, 1/4W 5%.
2. CAPACITOR VALUES ARE EXPRESSED IN MICROFARADS (uF).
Chk: App:
TITLE:
Last Modified:
Size
Schematic ESAB Cutmaster 60/80 20'/50' SL60 400V/208-460V 3ph
CE/Non-CE CCC / 1/3ph CSA (Configured for 460V 3ph)
42X1329
11
13:16:29
C
DWG No:
Sheet
of
SupersedesScale
Date:
Drawn: References
DateByRevisionsRev
PCB No:
Assy No:
NOTE: UNLESS OTHERWISE SPECIFIED -
1. RESISTOR VALUES ARE EXPRESSED IN OHMS, 1/4W 5%.
2. CAPACITOR VALUES ARE EXPRESSED IN MICROFARADS (uF).
Chk: App:
TITLE:
Last Modified:
Size
42X1329
11
13:16:29
C
DWG No:
Sheet
of
SupersedesScale
Date:
Drawn: References
DateByRevisionsRev
PCB No:
Assy No:
NOTE: UNLESS OTHERWISE SPECIFIED -
1. RESISTOR VALUES ARE EXPRESSED IN OHMS, 1/4W 5%.
2. CAPACITOR VALUES ARE EXPRESSED IN MICROFARADS (uF).
Chk: App:
TITLE:
Last Modified:
Size
42X1329
11
13:16:29
C
AB
24 VAC RETURN
J1
80
PCB4
AUTOMATION
INTERFACE PCB
OVER PRESSURE
INTERNAL ERROR
SHORTED TORCH
CONSUMABLES MISSING
START ERROR
PARTS IN PLACE
INPUT POWER
UNDER PRESSURE
81
ERROR INDFAULT
PCB3
8
9
82
7A
}
OK-TO-MOVE
OK-TO-MOVE
83
OK TO MOVE
1TORCH
Q2
PRIMARY POWER CONNECTIONS:
USE L1, L2, L3 & GND
*
5
6
}
1
2
3
4
5
6
7
8
9
10
11
12
13
14
15
16
17
18
19
20
21
22
23
24
25
26
29
34
35
36
37
38
39
}
E64
E35
78
79
-
+
-V_OUT_SIGNAL
/TIP_VOLTS
/TIP_SENSE
/460V_IN
/230V_IN
CUR_SET
/RAR (RAPID AUTO RESTART)
/INRUSH
/W1_ON
/SHDN
/TORCH_SOLENOID
/SOLENOID_ON
/OK_TO_MOVE
/FAN_ON
/LATCH_ACTIVE
/TORCH_SWITCH
/PIP
AC_ON
CSR
/TORCH_SOLENOID_DETECT
/OVERTEMP
V_IN
+12VDC
+12VDC
COMMON
COMMON
MAIN_PCB_ID
460_IN
+3.3VDC
TXD
RXD
COMMON
D
M-L
M-L
M-L
L-M
L-M
L-M
L-M
L-M
L-M
L-M
L-M
L-M
L-M
L-M
L-M
M-L
M-L
M-L
M-L
M-L
M-L
M-L
M-L
M-L
M-L
M-L
M-L
M-L
L-M
M-L
M-L
L-M
M-L
FULL FEATURED AUTOMATION INTERFACE PCB OPTION
CNC INTERFACE STANDARD ON A40 & A60 UNITS
CNC INTERFACE OPTIONAL ON CM52 & CM82 UNITS
(+)
L1
L2
L3
L4
T1
T2
T3
T4
/PIP
PCB2
/SOLENOID
Q1
380/400/415V
OR 600V
3 PH AC INPUT
/START
PCB1
NAFNAF
24VAC RETURN
ATC CONNECTOR
/FAN/FAN
24VAC SUPPLY
40 PIN RIBBON CABLE SIGNALS
LATCH
SET
RUN
RAR
40 CIRCUIT
RIBBON CABLE
}
MAX
90
85
80
75
70
65
MIN
J2
7
D1
To configure DIVIDED ARC VOLTS signal output
No jumper installed for ARC VOLTS /16.67
Jumper pins 1 & 2 for ARC VOLTS / 30
Jumper pins 2 & 3 for ARC VOLTS / 50
L1
L2
L3
GND
K1
DC
To -V OUT 1
on PCB1
}
/START / STOP
**
AIR
INLET
FILTER
}
REGULATOR
INTRO ECO B1357
DIVIDED ARC VOLTS
(5A @250VAC / 30VDC)
SOLENOID
VALVE
/START / STOP
TP1
TP2
TP3
TP4
TP5
TP6
TP7
(+)
ATC
MAIN PCB ASSY
LOGIC PCB
(-)
(W/ 100K IN SERIES (2))
INPUT CAPACITOR PCB
(-)
GAS CONTROL
*
ARC VOLTS
GND
+12 VDC
+5 VDC
3.3 VDC
0.v - 5.0 VDC / 0-100PSI
1.8 VDC
POT. DEMAND
J2 PINOUT
13
47
811
1214
TEST POINTS
GND1
GND2
GND3
+12V1
48V1
I_DMD_1
TIP_SEN
COMMON
COMMON
COMMON
+12 VDC SUPPLY
+48 VDC SUPPLY
CURRENT DEMAND
TIP DRAG SENSE
TEST POINTS
(Sink 50mA @12VDC)
AUTOMATION
TORCH SOLENOID
PRESSURE
TRANSDUCER
0-100PSI / 0-4.5VDC
INRUSH
RESISTORS
/INRUSH
/OVERTEMP
TEMP
CIRCUIT
D3
3.3VDC
TXD
RXD
D
SERIAL PORT
BIAS
SUPPLY
RWH
AA
RWH 03/31/09
*
EMI
CHOKE
EMI
FILTER
1
2
3
4
1
2
3
4
*
CE UNITS
ONLY
RWH 90/50/509931B OCE
AB
*CM52/12mm/20mm/A40
C3 & C5 may not be installed
WORK1WORK1
SEC1SEC1
D1D1
PRI 2 PRI 2
CHOKE1CHOKE1
J1J1
1
2
3
4
5
6
7
8
Q5
PILOT IGBT
Q5
PILOT IGBT
NTCNTC
J3J3
1
2
3
J3J3
1
2
3
+
C1-C4*
+
C1-C4*
W1W1
AC3AC3
7070
MOT1MOT1
+ -
W1W1
J4J4
1
2
3
4
5
MTH1MTH1
J7J7
1
2
TIP1TIP1
MTH4MTH4
J1J1
1
2
3
4
5
6
7
8
P10P10
1
2
3
4
5
6
7
8
1
2
3
9090
7575
MOT2MOT2
+
-
DCDC
J9J9
1
2
3
4
5
6
7
PRI 1 PRI 1
6565
J1J1
1
2
3
4
5
P10P10
1
2
3
4
5
6
7
8
SW1SW1
1 3
2 4
TS1TS1
MTH7MTH7
SEC2SEC2
8080
WORKWORK
PRI 4 PRI 4
AC2AC2
8585
E1E1
OVERTEMPOVERTEMP
MTH3MTH3
L1L1
Current ControlCurrent Control
MTH6MTH6
D59 PCRD59 PCR
ERRORERROR
J6J6
1
2
J8J8
1
2
D78 CSRD78 CSR
K1K1
MTH5MTH5
-V OUT 1-V OUT 1
J2J2
2
3
4
5
6
7
8
9
10
11
12
13
14
1
T1T1
J5J5
1
2
3
J11J11
1
2
MAXMAX
PRI 3PRI 3
J10J10
3
5
6
7
8
1
2
4
ELECTRODE1ELECTRODE1
GASGAS
MTH8MTH8
MTH2MTH2
TORCH SWITCHTORCH SWITCH
AC1AC1
+
C5-C8*
+
C5-C8*
ACAC
J2J2
2
3
4
5
6
7
8
9
10
11
12
13
14
1
MINMIN
K1K1
PIP SWITCHPIP SWITCH
1
2
3
4
5
6
7
8
SOL1SOL1
Wednesday, May 06, 2009
Thursday, March 27, 2008
SEE A-09133

Table of Contents

Related product manuals