EasyManua.ls Logo

Escea DL850 - Page 15

Escea DL850
56 pages
Print Icon
To Next Page IconTo Next Page
To Next Page IconTo Next Page
To Previous Page IconTo Previous Page
To Previous Page IconTo Previous Page
Loading...
B
ACDEFGSERVICE
15
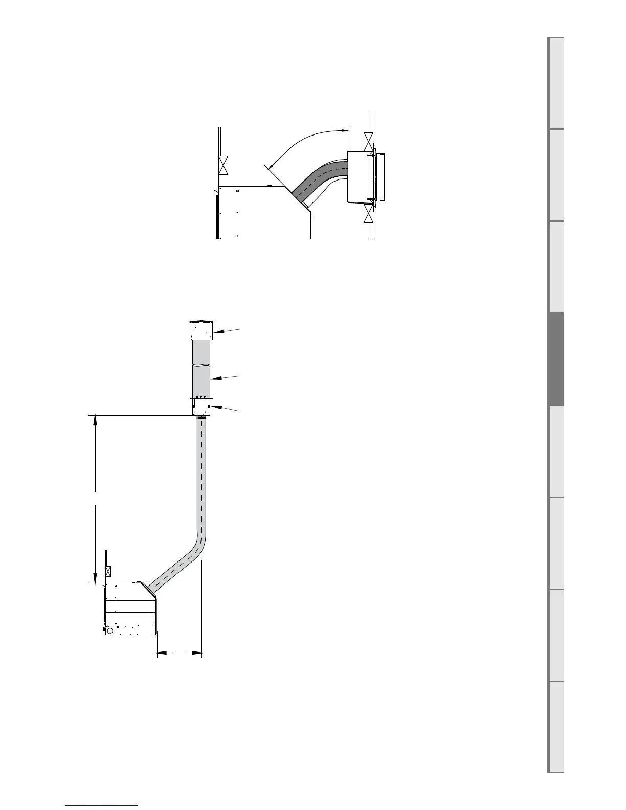
Vertically Terminated: Utilises the Escea vertical power flue enclosure kit.
400mm Min.
4m Max.
Overall flue length:

Table of Contents

Other manuals for Escea DL850

Related product manuals