EasyManua.ls Logo

FireFlex TOTALPAC2 - Detail of VFR-400 Wiring Routing

FireFlex TOTALPAC2
76 pages
Print Icon
To Next Page IconTo Next Page
To Next Page IconTo Next Page
To Previous Page IconTo Previous Page
To Previous Page IconTo Previous Page
Loading...
TOTALPAC2 Page 5 of 8
TOTALPAC2 Integrated Fire Protection System
Control Section
FM-086G-0-29C
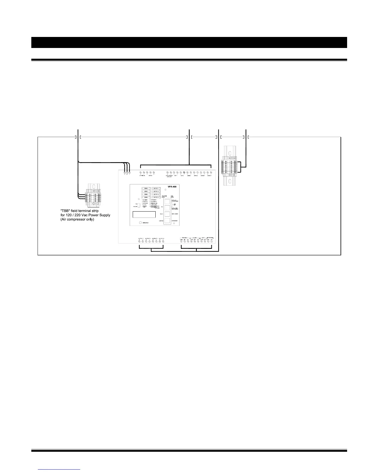
Figure 4 - Detail of VFR-400 wiring routing:
AC POWER
POWER LIMITED CIRCUITS
FM-086V-0-22
"TBC" field terminal strip
for Los Angeles & Chicago option
120 / 220 Vac Power Supply
(Control panel only)
NAC Circuits
Dry contacts
Supervisory / Detection24Vdc / Ann.

Table of Contents

Other manuals for FireFlex TOTALPAC2