EasyManua.ls Logo

FireFlex TOTALPAC2 - Page 72

FireFlex TOTALPAC2
76 pages
Print Icon
To Next Page IconTo Next Page
To Next Page IconTo Next Page
To Previous Page IconTo Previous Page
To Previous Page IconTo Previous Page
Loading...
Page 10 of 12
T
OTAL
P
AC
2
T
OTAL
P
AC
2 Integrated Fire Protection System
System design & Dimensional Data
FM-086G-0-48C
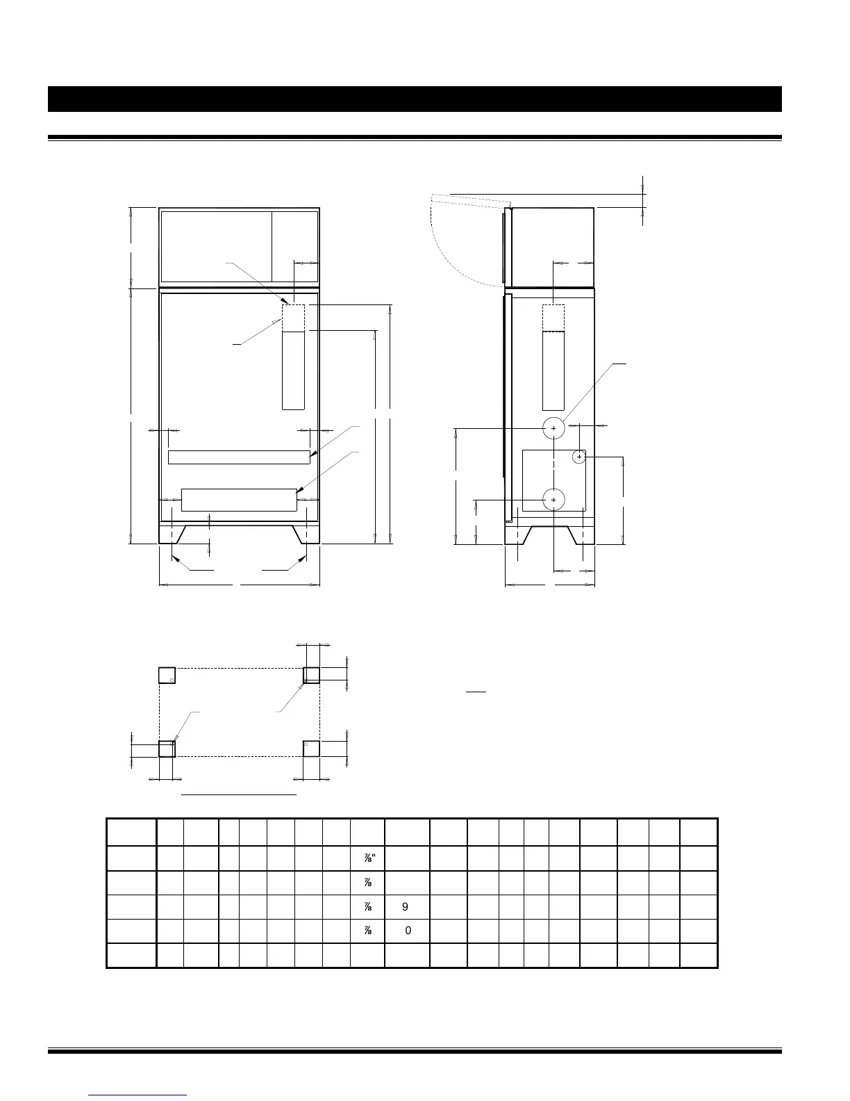
Figure 1 – Dimensions:
9/16" DIA. (4 HOLES)
WATER INLET
SCH.40 GROOVED OUTLET
DRAIN - SCH.40 GROOVED OUTLET
OPTIONAL
SHUT-OFF VALVE
SPRINKLER RISER
SCH.40 GROOVED OUTLET
SPRINKLER RISER
SCH.40 GROOVED OUTLET
A = WATER INLET DIAMETER
B = SPRINKLER RISER DIAMETER
C = DRAIN PIPE DIAMETER
D
G
M
M
N
E
N
H
S
Q
R
L
K
J
F
T
T
T
T
FM-072Q-0-21 B.doc
V
FLOOR ANCHORING TEMPLATE
U
U
C
A
B
See Note
Note: Access holes provided on
enclosure bottom plate to access
anchoring holes.
2" MAX.
W
OPTIONAL F.D.
CONN. OUTLET
(DRILLED ONLY
WHEN ORDERED !)
P
System
Size
A
B C
D
E
F G
H J / R
K L M
N
Q T U V W
1½"
2" 1½" 2"
36"
57"
20"
4" 8
" 9" 18½"
3½"
6" 2" 5" 2¾" 4" 14" 26"
2"
2" 2" 2"
36"
57"
20"
4" 8
" 9" 18½"
3½"
6" 2" 5" 2¾" 4" 14" 25"
3"
4" 3" 2"
36"
57"
20"
4" 9
" 9" 18½"
3½"
6" 2" 5" 2¾" 4" 14" 25"
4"
4" 4" 2"
46"
57"
24"
4" 9
" 10" 18½"
3½"
6" 2" 6½"
2¾" 4" 14" 25"
6"
6" 6" 2"
46"
57"
24"
4" 11" 10" 18½"
3½"
6" 2" 6½"
2¾" 4" 14" 25"
Notes:
Dimension W is nominal and may vary by about ¼.
Dimensions P and S vary with system configuration, refer to the following table for details.

Table of Contents

Other manuals for FireFlex TOTALPAC2