EasyManua.ls Logo

FLOWBIRD CWT Compact Touch - Page 28

Default Icon
100 pages
Print Icon
To Next Page IconTo Next Page
To Next Page IconTo Next Page
To Previous Page IconTo Previous Page
To Previous Page IconTo Previous Page
Loading...
Page 28 CWT Compact Touch Installation and Maintenanace Manual Issue 13
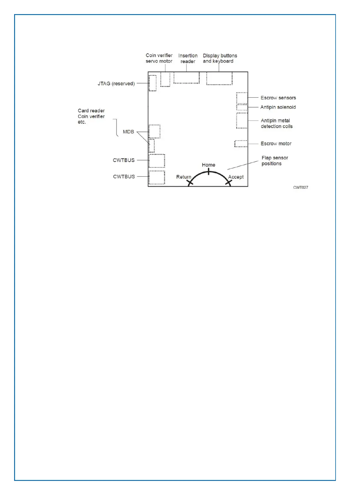
The coin handling board, with its own AVR (micro controller), controls the
functions of the coin system module. The board, which connects to the CPU
board via the CWT BUS, also serves as an interface between the display buttons
in CWT Compact and an optional card reader. The AVR firmware can be updated
using a PC.
A screen print at the bottom of the board indicates the position of the flap sensors
mounted on the component side. The sensors are affected by the tiny permanent
magnet fitted on the flap pulley.
4.1.3.5 Coin box
The coin box has 4.6 litre capacity. A presence sensor and software detection of
when the box is near full and full is also built into the system.
Coin collection personnel must have the proper access privileges to be able to
open the pedestal door. All access attempts are logged in CWT Compact and are
transferred to the Cale WebOffice management system.
All structural joints on the coin box are riveted or welded. Screw fittings are not
used. This reduces the risk of anyone breaking into the coin box without leaving
any traces.
Figure 14, Coin handling board as seen from the solder side.

Table of Contents

Related product manuals