EasyManua.ls Logo

FLOWBIRD CWT Compact Touch - Power Supply

Default Icon
100 pages
Print Icon
To Next Page IconTo Next Page
To Next Page IconTo Next Page
To Previous Page IconTo Previous Page
To Previous Page IconTo Previous Page
Loading...
Issue 13 CWT Compact Touch Installation and Maintenanace Manual Page 59
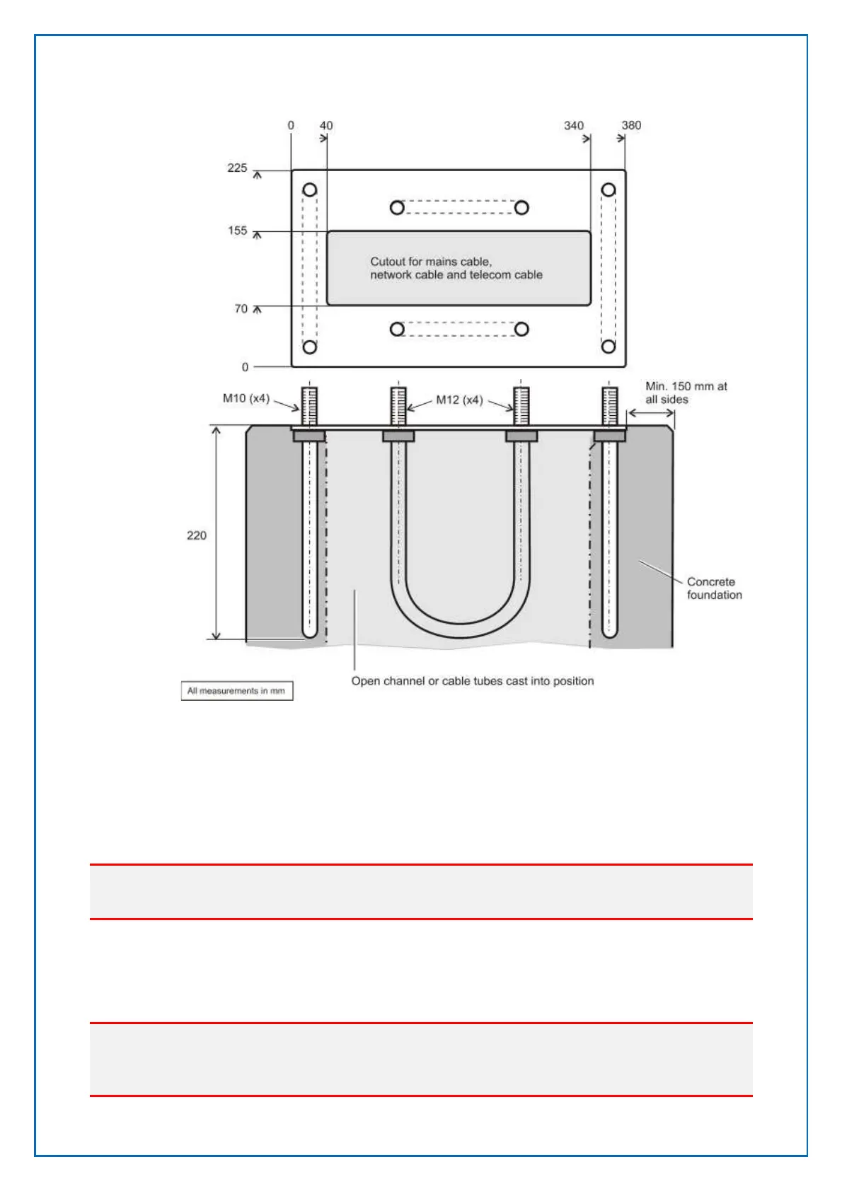
If the terminal should be connected to the grid power supply, a duct must be cast
in the concrete foundation so that the cable can be routed in through the bottom
of the pedestal. You can cast an approved type of plastic or steel pipe, according
to local regulations.
Danger:
Follow local regulations regarding electrical installations.
5.1.5 Power supply
Danger:
Only qualified personnel may carry out electrical installation. Follow all local
regulations.
Figure 45, Foundation measurements

Table of Contents

Related product manuals