EasyManua.ls Logo

FLOWBIRD CWT Compact Touch - Solar Power Positioning

Default Icon
100 pages
Print Icon
To Next Page IconTo Next Page
To Next Page IconTo Next Page
To Previous Page IconTo Previous Page
To Previous Page IconTo Previous Page
Loading...
Page 56 CWT Compact Touch Installation and Maintenanace Manual Issue 13
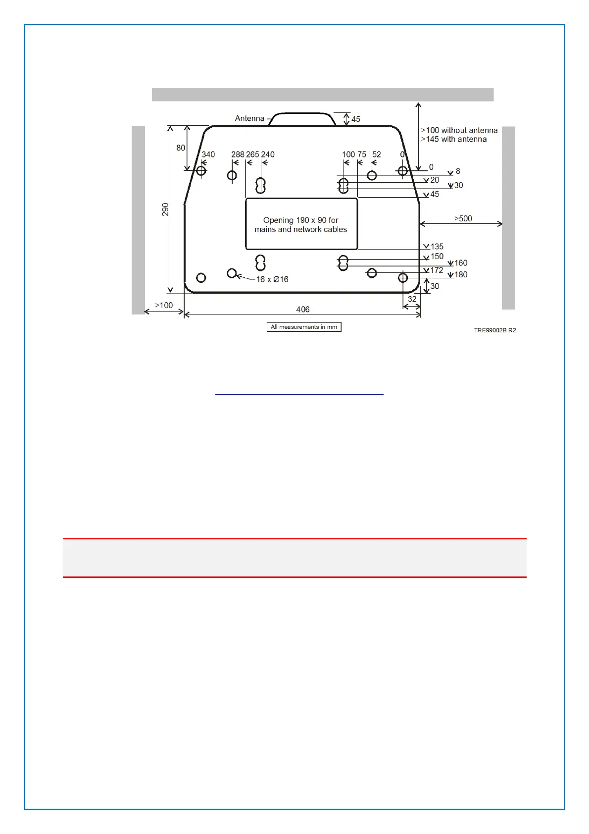
The above figure shows all the alternative mounting holes in the pedestals
bottom plate. See
Pouring a new concrete foundation regarding placing the
terminal on a base anchor cast into a foundation.
A cable for connection to the power grid is drawn through the floor (from the floor
below, for example) and into the pedestal through the opening in the mounting
frame (optional). Alternatively, a hole can be drilled in the pedestal and the
cables drawn in some other way. The cable must be protected against damage.
Use proper cable bushing to prevent cable wear and moisture entry into the
pedestal.
Danger:
Follow local regulations regarding electrical installations.
5.1.2 Solar power positioning
The ideal installation of the terminal may vary due to the surroundings. A thumb
rule is to have the solar panel facing south with the panel surface perpendicular
towards the sun.
The drawing below illustrates how a Cale terminal is installed on an undefined
street with obstacles (buildings) on both sides. The illustration also shows the
angle where the solar panel will get the most sun during the day. Please note that
the angle is also 360 degrees around the terminal. Mentioned parameters must
be considered when planning an installation.
Figure 41, Terminal installation drawing

Table of Contents

Related product manuals