EasyManua.ls Logo

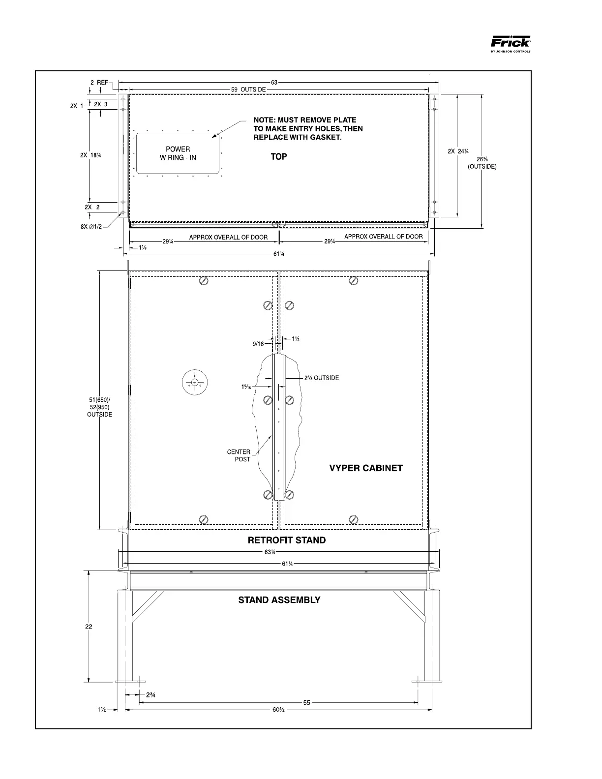
Frick Vyper 700 - Figure 7 - Vyper Cabinet and Stand

Frick Vyper 700
76 pages
Print Icon
To Next Page IconTo Next Page
To Next Page IconTo Next Page
To Previous Page IconTo Previous Page
To Previous Page IconTo Previous Page
Loading...
VYPER
VARIABLE SPEED DRIVE
INSTALLATION
100-210 IOM (JUL 09)
Page 18
Figure 7 - Vyper
Cabinet and Stand

Table of Contents

Related product manuals