EasyManua.ls Logo

Frick Vyper 700 - Analog Board Wiring; Motorized Valve Temp Sensor; Motorized Valve

Frick Vyper 700
76 pages
Print Icon
To Next Page IconTo Next Page
To Next Page IconTo Next Page
To Previous Page IconTo Previous Page
To Previous Page IconTo Previous Page
Loading...
VYPER
VARIABLE SPEED DRIVE
INSTALLATION
100-210 IOM (JUL 09)
Page 30
14 3 2
P2
9
8
7
+
ñ
0v
-12
+12
+5
RS 485 COM CABLE-#9841 BELDEN OR EQUAL
TB1
485+
485-
DR
RED
WHT
GRN
BLK
+12
ANALOG BOARD
NOT NECESSARILY
MOUNTED IN THIS
POSITION
CABLE #109
24 VDC
3TB IN VYPER
TO
MOTORIZED
VALVE
ANALOG
BOARD
LAYOUT
CPU
MOTHER
BOARD
LAYOUT
VYPER COOLING
TEMP SENSOR
TO
TE-6
ICTD
BELDEN #8762 OR EQUAL
THIS WIRING MAY GO TO
ANA 1 OR 2
COM3
PL10
PARALLEL 422/485
PL16
ON
8
LK12
LK11
PL12
P9
LK1
P7
COM4
1
BA
7
LK9-
LK9
TB1
0
-LK10
LED'S
LK10
-LK8
AB
BA
LK17
LK7
LK6
LK2
LK5
LK3
LK4
LK8
LK16
422/485
COM1
BAT
1
B
LK7
1
LK5
COM2
422/485
LK6
A
TB2
4
3
2
2
3
4
LK2
PL10
PL1
2 13
COM2
COM2
FLASH
& SOCKET
MEMORY MOD
B
B
PL11
-LK3
PL5
LK4-
A
A
PL15
232 STANDARD
LK1
KYPD
TB3
SW1
FLAT PANEL
HEAT SINK
LK11
PL14
DC POW
ANALOG BD
P3
1
16
LK1
P8
CUR
XFMR
640D0168H01
1
LK2
ROCKER
OFF
DOWN
P1
LK3
LK4
SW1
1
8
P2
9
+ -
21
8
7
+
ñ
COM
-12
+12
+5
P4B(2)
P4A(1)
S
+ -S +
1
S
B 1
+
- +
SSS - + -S + - + -S + S- + S - + -
P6B(6)P5B(4)
P5A(3)
1
6
S
6
1
- +
- + S
1
6
P6A(5)
S
6
1
- +
+- S
P7B(8)
P7A(7)
1
6
6
1
- + S
+- S
6 A
6 B
-
A
S+ S - + S- + - S+
+
-
-
+
+ - +- -
6
-
P9A
1
S
P9B
+- S
1
6 P10A
6
1
+- S
P10B
+- S
P11B
P11A1
-
6
1
+
+ - +
8
A
8
+- -
B
1
+
A
B
OV OR COM
+
1001
FROM UNIT W/D SHT 1
LN 12
CABLE #29
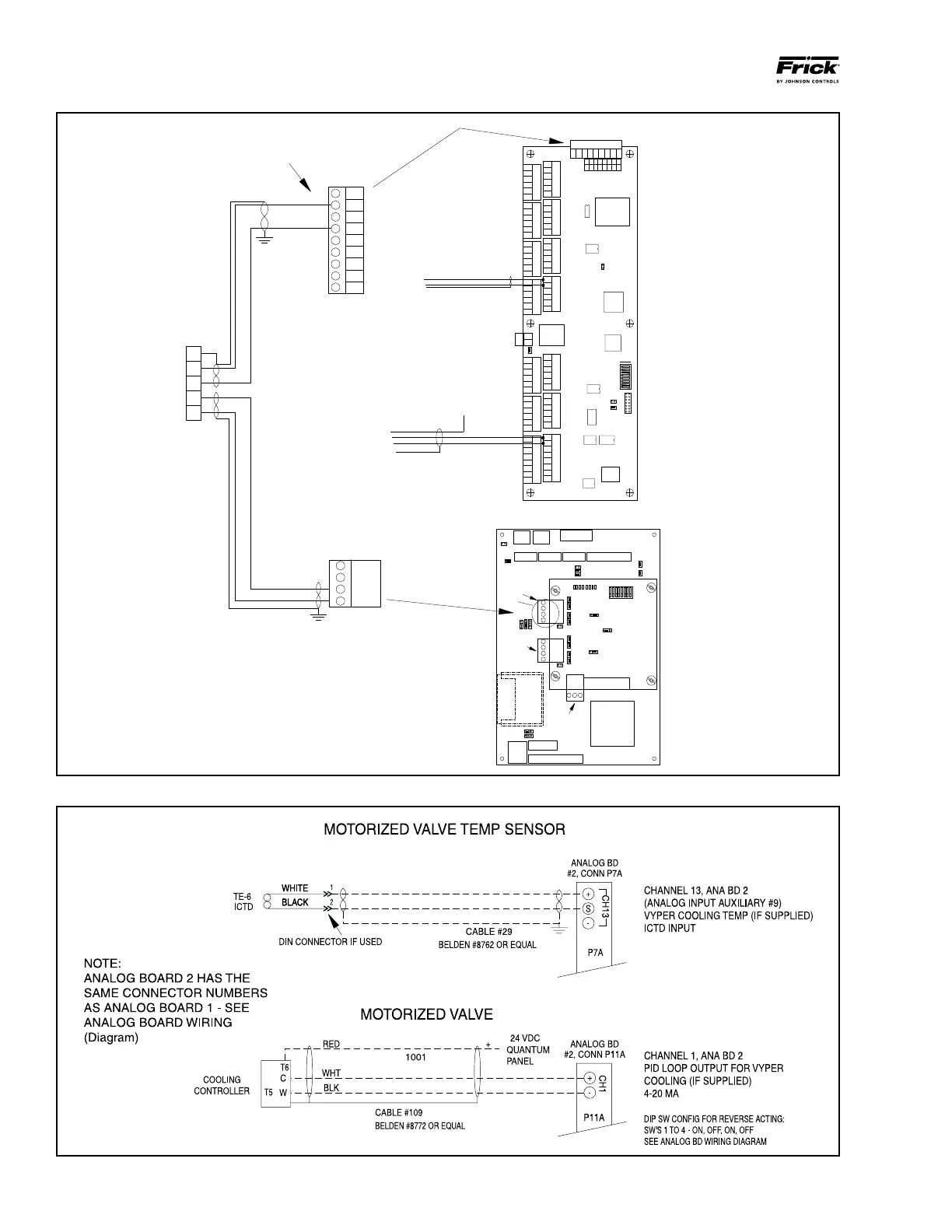
Figure 22 - Analog Board Wiring
Figure 23 - Temperature Control Valve Wiring

Table of Contents

Related product manuals