EasyManua.ls Logo

GE P54C - Case Dimensions 80 TE; Figure 198: 80 TE Case Dimensions

GE P54C
850 pages
Print Icon
To Next Page IconTo Next Page
To Next Page IconTo Next Page
To Previous Page IconTo Previous Page
To Previous Page IconTo Previous Page
Loading...
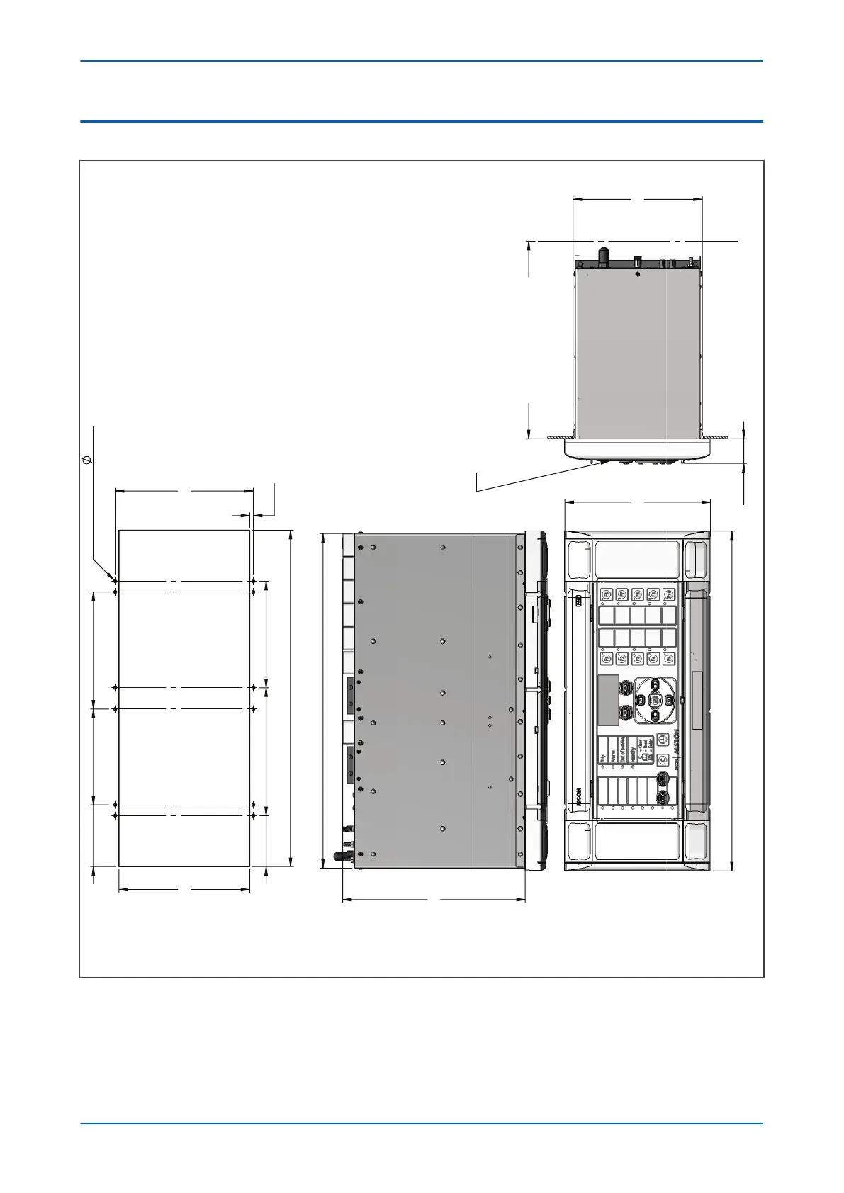
5.3 CASE DIMENSIONS 80TE
413.2
177.00
222.00
407.10
30.00
240.00
INCL. WIRING
157.50 MAX
SIDE VIEW
SECONDARY COVER
(WHEN FITTED)
116.55 142.45
12 OFF HOLES
3.40
168.00
4.50
129.50155.40
408.90
62.00
159.00
74.95
FRONT VIEW
TERMINAL SCREWS : M4 X 7 BRASS CHEESE HEAD SCREWS WITH
LOCK WASHERS PROVIDED.
MOUNTING SCREW : M4 X 12 SEM UNIT STEEL THREAD
FORMING SCREW.
FLUSH MOUNTING PANEL
CUT-OUT DETAIL
E01410
Figure 198: 80TE case dimensions
Chapter 19 - Installation P54A/B/C/E
444 P54xMED-TM-EN-1

Table of Contents

Related product manuals