EasyManua.ls Logo

Hammer HS 950 - Working;Additional Table Height Adjustment; Sanding Unit Angle Adjustment

Hammer HS 950
60 pages
Print Icon
To Next Page IconTo Next Page
To Next Page IconTo Next Page
To Previous Page IconTo Previous Page
To Previous Page IconTo Previous Page
Loading...
36
#
"
%
90
80
85
!
"
#
!
#
$
Edge sanders
HS 950
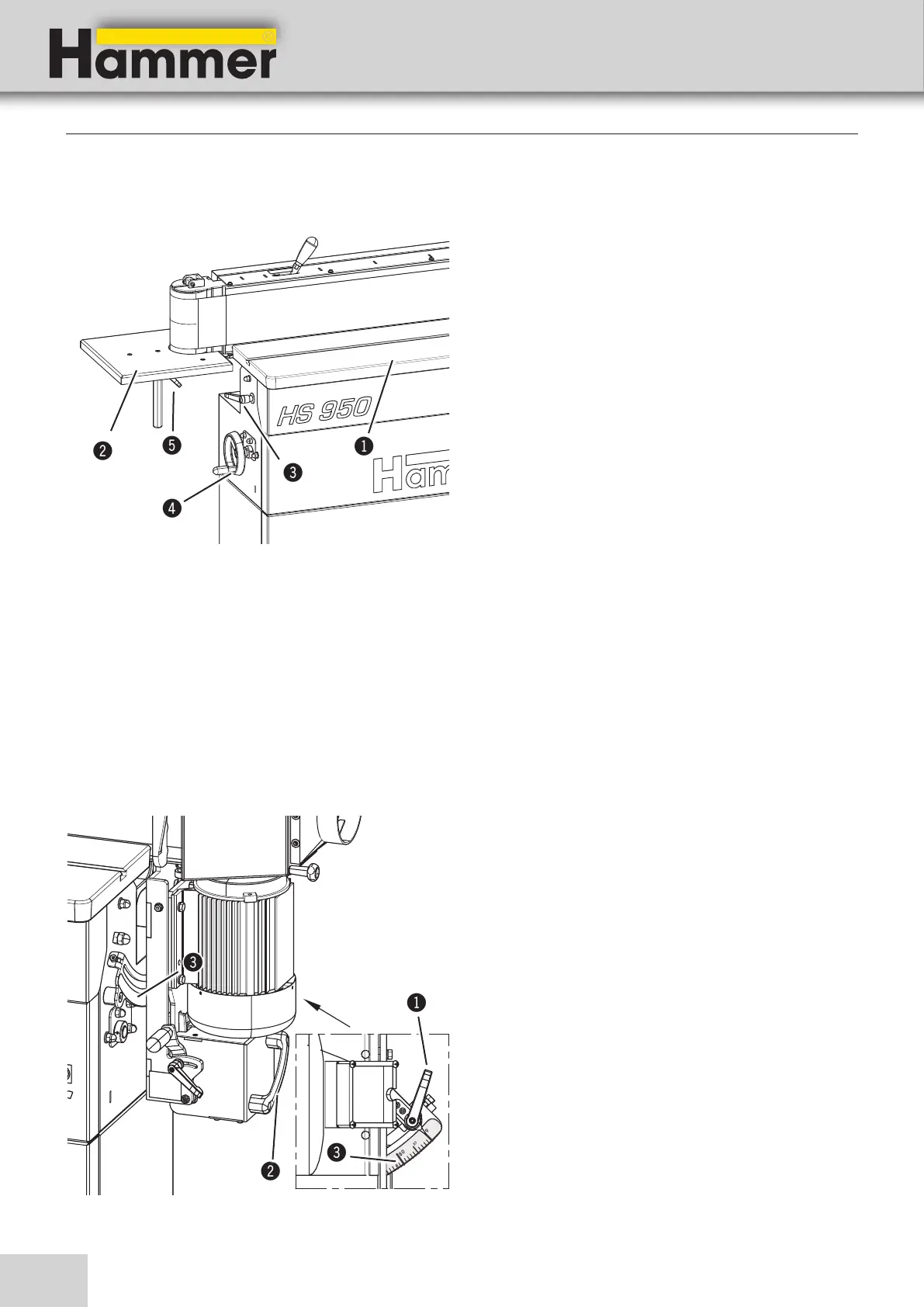
Work bench :
1. Release the clamping lever.
2. table height adjusted using the handwheel.
• Clockwise: lower
• Anti-clockwise: higher
3. Clamp the clamping lever.
additional table :
1. Release the clamping lever.
2. For height adjustment, move the additional table to
the desired position.
3. Clamp the clamping lever.
! Work bench
" additional table
# Clamping lever - Work bench
$ Handwheel - Work bench
% Clamping lever - additional table
8.4 Height adjustment of the working table / additional table
8.5 Angle adjustment of the sanding unit
The sanding unit is continuously adjustable between 0 -
90°.
1. Release the clamping lever.
Use the handgrip to swivel the unit.
2. Set the angle between 0° and 90° on the scale
3. Clamp the clamping lever.
! Clamping lever
" Hand grip
# Scale
Making adjustments and preparations
Fig. 8-3: Height adjustment of the working table
Fig. 8-4: Angle adjustment of the sanding unit

Table of Contents

Related product manuals