EasyManua.ls Logo

IBM pSeries 630 6C4 - Step 12. Are You Connecting to an Hardware Management Console (HMC)

IBM pSeries 630 6C4
180 pages
Print Icon
To Next Page IconTo Next Page
To Next Page IconTo Next Page
To Previous Page IconTo Previous Page
To Previous Page IconTo Previous Page
Loading...
Step 12. Are You Connecting to an Hardware Management Console (HMC)?
If your HMC is already connected, continue with this step. If your HMC has not been
previously installed refer to ā€œInstall the Hardware Management Console (HMC)ā€ on
page 64. After you complete the HMC installation procedure, return here and complete
this step.
Notes:
1. Before doing this step, read and understand ā€œStep 3. Read the Safety Noticesā€ on
page 10.
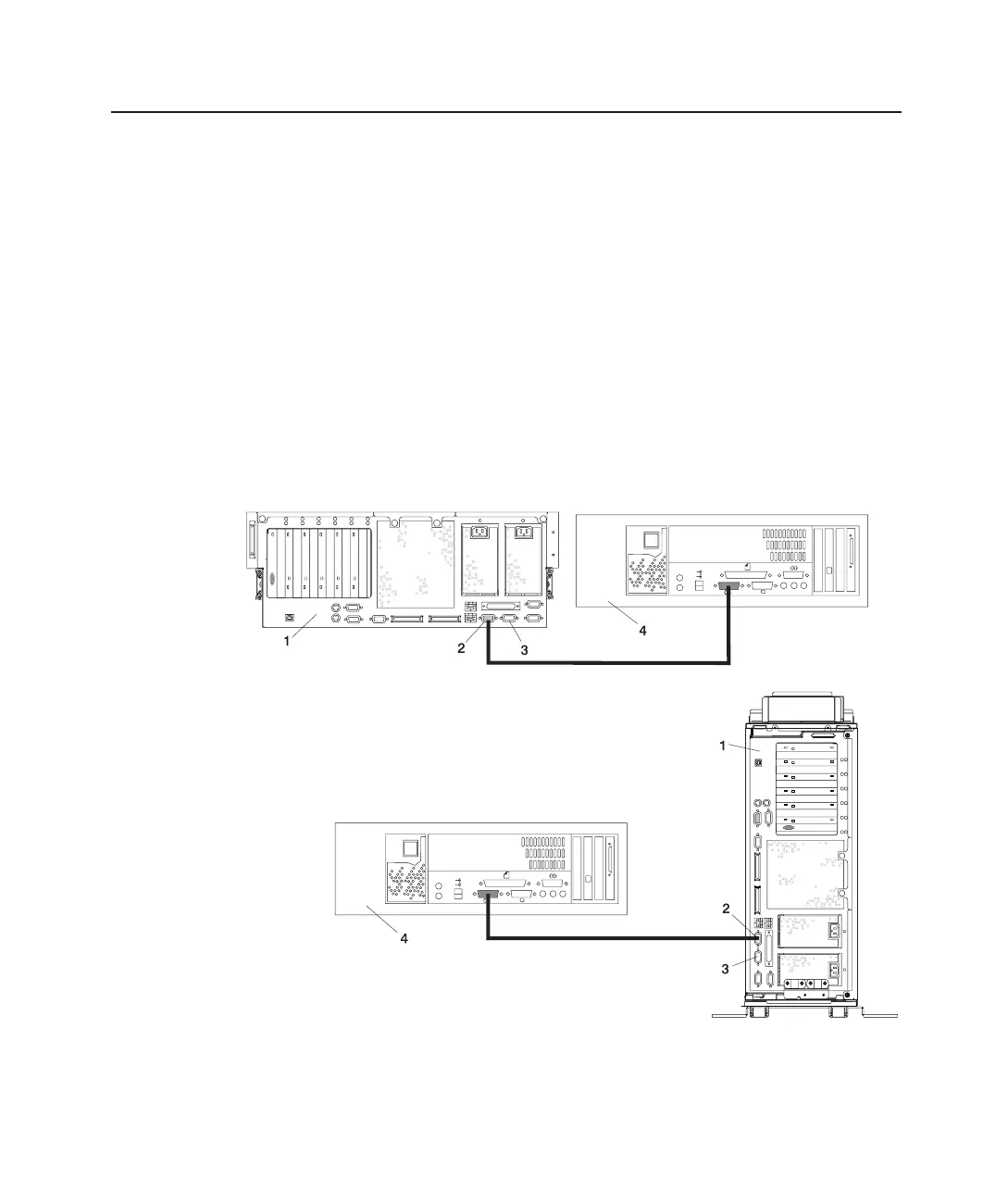
2. This system drawer is equipped with two HMC connectors located on the back of
the system. The connectors are labeled HMC1 and HMC2.
To connect your HMC to the Model 6C4 or Model 6E4, connect the HMC serial cable to
the HMC1 connector. If this is your second HMC being connected to the Model 6C4 or
Model 6E4, connect the HMC serial connector to the HMC2 connector.
After connecting the HMC, go to ā€œStep 16. Connect the Serial and Parallel Devicesā€ on
page 31.
1 Model 6C4 or Model 6E4 3 HMC2 Connector
2 HMC1 Connector 4 Hardware Management
Console (HMC)
Chapter 2. Setting Up the System
27

Table of Contents

Other manuals for IBM pSeries 630 6C4

Related product manuals