EasyManua.ls Logo

IMET M550 - Logic Board; Data Feedback Card

IMET M550
53 pages
Print Icon
To Next Page IconTo Next Page
To Next Page IconTo Next Page
To Previous Page IconTo Previous Page
To Previous Page IconTo Previous Page
Loading...
IMET - M550 ALL1-EN 17/53
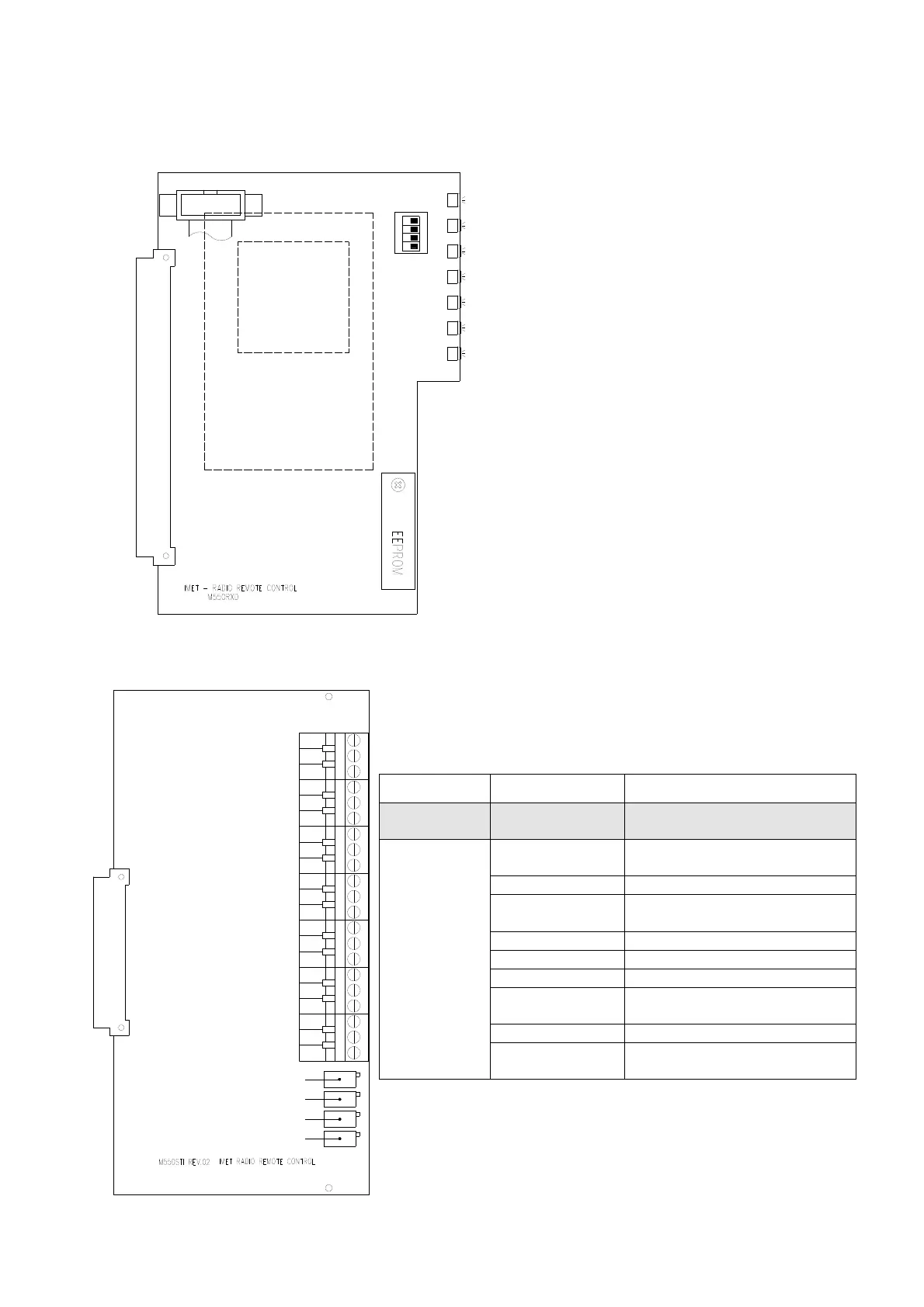
5.4.4. Logic board
The logic board receives and decodes the commands coming from the transmitting unit. The board is
preset for an (optional) serial connection to the transmitting unit for receiving data via cable.
5.4.5. Data feedback card
The data feedback card is used when it is necessary to collect
data from the application and send it via radio to the display on
the transmitting unit. Data collection can be performed in parallel
or in series, as shown in the table below.
Option Terminal Description
USER
SERIAL
STB RS232 user input
PARALLEL
D0,…,D7 Optoisolated parallel port
digital inputs
STB Parallel port control I/O
VIN=ENABLE Input enabling the ACK and
ERR outputs
ACK Parallel port control I/O
ERR Parallel port control I/O
AD0,…,AD3 12 bit A/D converter inputs
+5V Auxiliary power supply output
(Imax = 5mA)
GND Ground connection inputs
CURRENT
GAIN AD0-AD3
Current amplification regulator
for AD0-AD3 input signal
ON
RF BUSY
POWER SUPPLY
WORKING
DATA ERROR CH. B
PASSIVE EMERGENCY CH. B
DATA ERROR CH. A
PASSIVE EMERGENCY CH. A
CAVO SERIALE
DIP-SWITCH
CURRENT GAIN AD3
CURRENT GAIN AD2
CURRENT GAIN AD1
CURRENT GAIN AD0
GND
GND
GND
+5V
GND
AD3
AD2
AD1
AD0
ERR
ACK
+VIN
STB
D7
D6
D5
D4
D3
D2
D1
D0

Table of Contents

Related product manuals