EasyManua.ls Logo

IMET M550 - Other Control Cards for L-DC and K-DC Receivers

IMET M550
53 pages
Print Icon
To Next Page IconTo Next Page
To Next Page IconTo Next Page
To Previous Page IconTo Previous Page
To Previous Page IconTo Previous Page
Loading...
IMET - M550 ALL1-EN 23/53
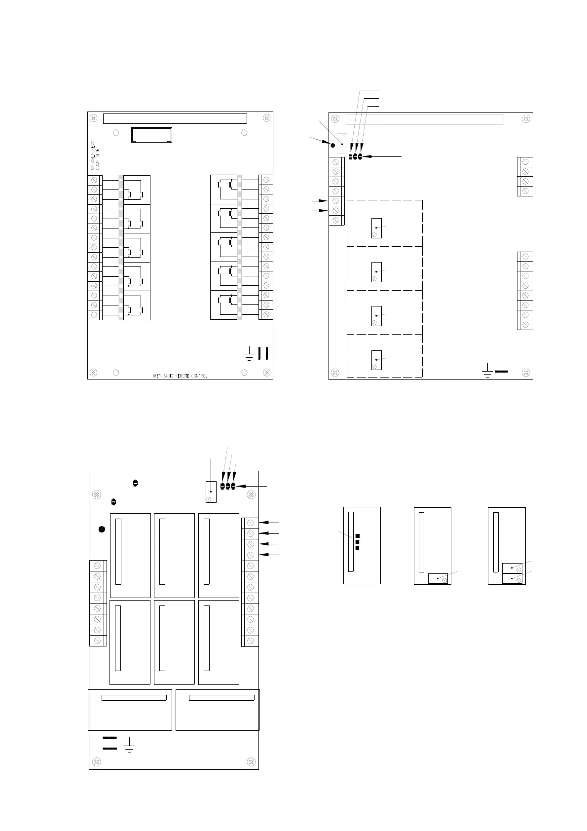
5.5.5. Other control cards for L-DC and K-DC receivers
MOSFET control card Mosfet + analogue command board for HSC
Analogue control card
Control modules
Vout MAX REG.
ANALOG CARD
Vout MIN REG.
M550V SERIES
M550C1 (PWM)
GAIN REG.
ANALOG CARD
ANALOG CARD
M550C2
RANGE SEL.
M550C2: 0-20mA/4-20mA current-operated control
M550C1: PWM current-operated control
M550V: voltage-operated control
C
OM C3/C4
C2
COM B7/B8
C4
C3
B8
B7
B5
C
OM B5/B6
B6
C
OM B3/B4
B4
COM B1/B2
B3
B2
B1
A1
COM C1/C2
C1
COM A1/A2
A2
COM A3/A4
A4
A3
A5
A6
COM A5/A6
A7
A8
COM A7/A8
30 29 28
27
26 25
24
23
22 21
20 19 18
17
16
151413121110987654321
C3
C4
B7
B8
B5
B6
B3
B4
B1B2
C2 C1
A1 A2
A3
A4
A5 A6
A7
A8
* IN AD6
OUT AD7
OUT AD6
* IN AD5
OUT AD5
ANALOG CARD
CH AD2
ANALOG CARD
CH AD1
* IN AD1
OUT AD1
ANALOG CARD
CH AD3
ANALOG CARD
CH AD7
* IN AD2
OUT AD2
OUT AD3
* IN AD4
* IN AD3
OUT AD4
ANALOG CARD
CH AD6
ANALOG CARD
CH AD8
ANALOG CARD
CH AD4
ANALOG CARD
CH AD5
FREQ. REG. (PWM)
FOR M550C1
* IN AD1, ... ,8 COLLEGATO SOLO PER PWM
USED ONLY FOR PWM OUTPUT
GND
GND
IN C7
IN C8
* IN AD8
OUT AD8
* IN AD7
JUMPER
FREQ. SEL.
T3
T2
T1
371 - 1000Hz
131 - 370Hz
50 - 130Hz
C8 ENABLE
C7 ENABLE
FREQ. T.P.
AD5
AD6
AD7
AD8
A5
A6
A7
A8
B4
B3
IN C8
GND
A4
A3
A2
A1
GND
IN C7
B2
B1
+24V
FREQ. T.P.
T1
T2
FREQ. REG. (PWM)
FOR M550C1
JUMPER
FREQ. SEL.
371 - 1000Hz
131 - 370Hz
50 - 130Hz
GAIN REG.
GAIN REG.
GAIN REG.
GAIN REG.

Table of Contents

Related product manuals