EasyManua.ls Logo

IMET M550 - L-DC Version

IMET M550
53 pages
Print Icon
To Next Page IconTo Next Page
To Next Page IconTo Next Page
To Previous Page IconTo Previous Page
To Previous Page IconTo Previous Page
Loading...
20/53 IMET - M550 ALL1-EN
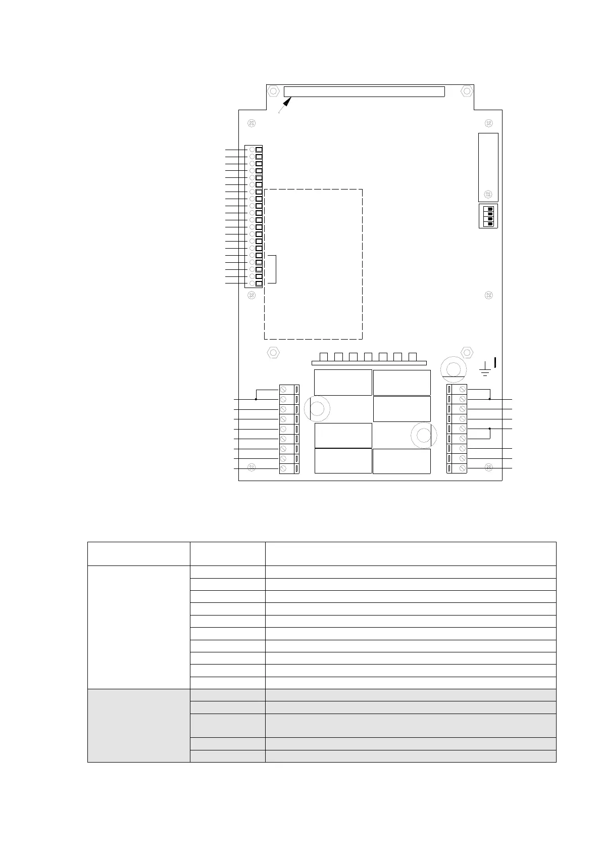
5.5.2. L-DC version
Options on
request
SYMBOL DESCRIPTION
12-28V DC IN
Input for main power supply
GND
Ground connection input
F10
1.25A L250V power supply fuse
E-STOP
STOP relay connection
F12
T5A L250V E-STOP contact protection fuse
START
NO/NC relay output
HORN
Horn control relay output
T-STOP
Time-Stop relay connection
S-STOP
Safety-Stop relay connection
F11
T5A L250V S-STOP contact protection fuse
SERIAL
CONNECTION
CABLE
D0
DATA IN for RS232 serial
VIN=ENABL
E
Input enabling RS232 (down active)
+10,7
10.7V DC Imax=250mA auxiliary voltage output
GND
Ground connection input
F11
E-STOP 2/2
T1,25A
L250V
RS232
+V IN
ERROR
ACK
COM ON/OFF IN
D0 ON/OFF IN - RX IN
D1 ON/OFF IN
D2 ON/OFF IN
D3 ON/OFF IN
D4 ON/OFF IN
D5 ON/OFF IN
D6 ON/OFF IN
D7 ON/OFF IN
+10,7V
GND
+5V
AD0 IN
AD1 IN
AD2 IN
AD3 IN
STROBE
+12 ÷ 28Vdc IN
T5A
L250V
T5A
L250V
ON
HORN NO
SAFETY STOP NO
SAFETY STOP C
TIMED STOP NO
TIMED STOP NC
TIMED STOP C
HORN NC
HORN C
PASSIVE EMERGENCY CH. A
DATA ERROR CH. A
PASSIVE EMERGENCY CH. B
DATA ERROR CH. B
WORKING
POWER SUPPLY
RF BUSY
SLOT PER INSERIMENTO SCHEDE
E-STOP
EEPROM
F12
START
HORN
TIMED
STOP
DIPSWITCH
SAFETY
STOP
E-STOP 1/2
F10
GND
E-STOP
START C
START NC
START NO

Table of Contents

Related product manuals