EasyManua.ls Logo

JRC JMA-5204 - Page 57

JRC JMA-5204
540 pages
To Next Page IconTo Next Page
To Next Page IconTo Next Page
To Previous Page IconTo Previous Page
To Previous Page IconTo Previous Page
Loading...
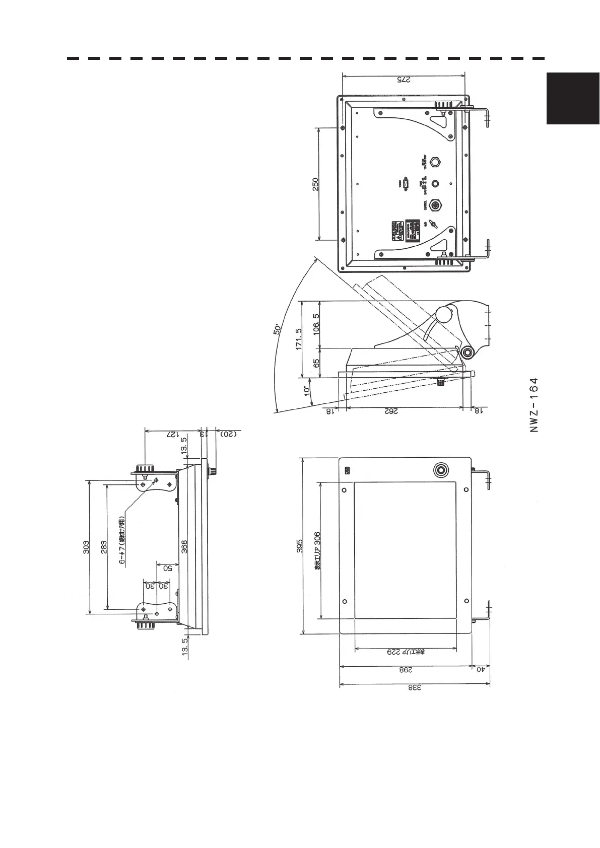
1.4 EXTERIOR DRAWINGS
1ņ14
1
y
Fig. 1.8 Exterior Drawing of Monitor Unit, Type NWZ-164

Table of Contents

Related product manuals