EasyManua.ls Logo

Lenovo thinksystem SR630 - Inch;3.5-Inch Drive Backplane (Power)

Lenovo thinksystem SR630
276 pages
To Next Page IconTo Next Page
To Next Page IconTo Next Page
To Previous Page IconTo Previous Page
To Previous Page IconTo Previous Page
Loading...
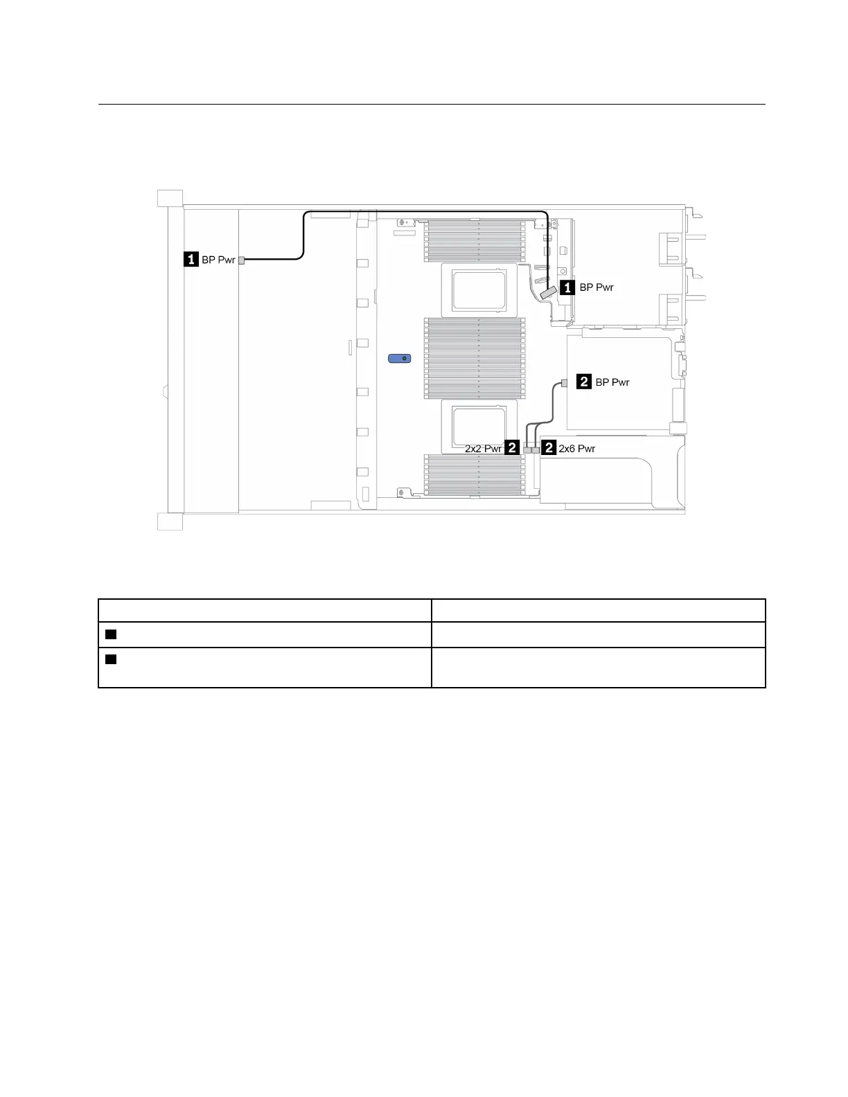
2.5-inch/3.5-inch drive backplane (power)
Use the section to understand the power cable routing for 2.5-inch or 3.5-inch drive backplanes.
Figure 20. Backplane power cable connection
From To
1 Power connector on the front drive backplane Front backplane power connector on the system board
2 Power connector on the rear drive backplane Power connectors on the rise card on the riser 1
assembly
Chapter 3. Internal cable routing 65

Table of Contents

Other manuals for Lenovo thinksystem SR630

Related product manuals