EasyManua.ls Logo

Lenovo thinksystem SR630 - Page 81

Lenovo thinksystem SR630
276 pages
To Next Page IconTo Next Page
To Next Page IconTo Next Page
To Previous Page IconTo Previous Page
To Previous Page IconTo Previous Page
Loading...
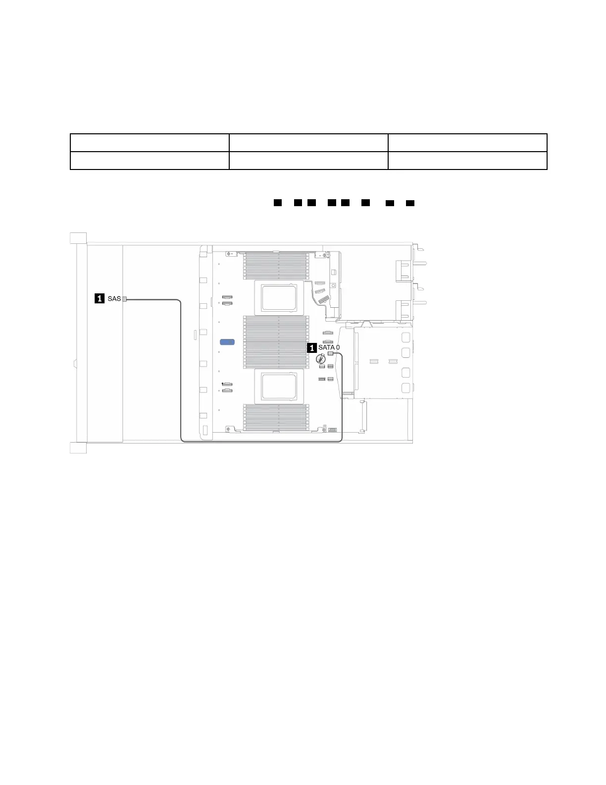
Cable routing for onboard configuration
The following table shows the mapping relationship between backplane connectors and system board
connectors for onboard configuration.
Table 25. Mapping between backplane connectors and system board connectors for onboard configuration
Backplanes From To
Front BP (SAS) SAS SATA 0
The following figure illustrates the cable routing for the onboard configuration of 4 x 2.5-inch front SAS/SATA
drive bays. Connections between connectors:
1 1 , 2 2 , 3 3 , ... n n
Figure 24. Cable routing for onboard configuration of 4 x 2.5-inch front SAS/SATA drive bays
Chapter 3. Internal cable routing 71

Table of Contents

Other manuals for Lenovo thinksystem SR630

Related product manuals